Double panorama flat
🏡 General Information:
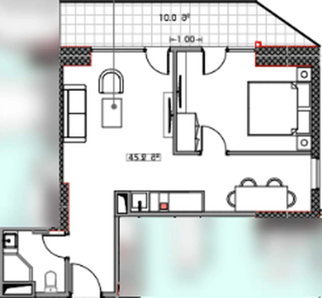
Studio Apartment - Total area: 55.2 m² - Living area: 45.2 m² - Terrace: 10.0 m² - Residential complex "Calligraphy Towers", Block C - Heroes Alley, Batumi.
📐 Layout and Benefits:
Spacious and bright flat with a modern layout. The living area (45.2 m²) harmoniously combines the living room, kitchen and sleeping area to create a cosy single space. The large terrace (10.0 m²) is the main advantage, offering a unique double panorama: a dynamic harbour view and a majestic mountain perspective. The floor is ideally suited to comfortably enjoy both views.
👨👩👧 Suitable for:
-
For living with an interesting view: A great option for those who appreciate diversity: you can observe both the busy harbour life and the tranquility of the mountain ranges. The quiet, prestigious neighbourhood provides a quality living environment.
-
To invest in a unique facility: A flat with such a characteristic view is a rare offer on the market. This ensures high liquidity and attractiveness for rent, as the combination of urban and natural scenery is favoured by many.
-
For tourist rentals: Proximity to the harbour often means convenient logistics. Visitors to the city will appreciate the scenic views from the balcony, as well as the walking distance to restaurants, the seafront and major routes.
📍 Extras:
The flat is located on the 7th floor in Block C. The Alley of Heroes neighbourhood is characterised by well-developed infrastructure: shops, restaurants, cafes and park areas are located nearby. The view of the harbour adds a special charm and a sense of connectedness with the city.
Do you want to buy a property with a memorable view?
Get all the details, current price and terms on this interesting lot. Leave a request on the website or write to us in WhatsApp for prompt communication.













