Dva balkony pro váš život
🏡 Obecné informace
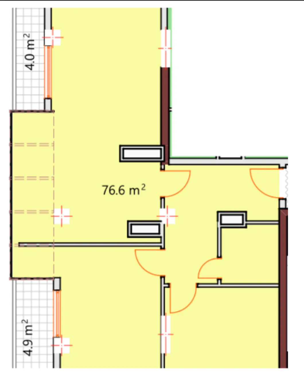
Prostorný 2pokojový byt v moderním komplexu Moderní rezidence v okrese Bagrationi, Gonio (Batumi). Celková rozloha je 85,50 м²z toho 76,60 м² - obytná část. Byt doplňují dva balkony s malebným výhledem na město a hory.
📐 Rozložení a výhody
Dispozice zahrnuje útulnou obývací pokoj spojený s kuchyní, и dvě ložnicekterý poskytuje pohodlí a soukromí. ✅ Dva balkony (4,0 m² a 4,9 m²) vám umožní vychutnat si výhled a čerstvý vzduch a rozšířit užitný prostor. Velká okna zaplavují byt světlem a zdůrazňují jeho moderní formát.
👨👩👧 Vhodné pro
-
Rodiny s jedním dítětem: Izolované pokoje umožňují každému mít svůj vlastní prostor a čtvrť Bagrationi je známá svou klidnou atmosférou.
-
Pro dlouhodobý pronájem: Prostornost a funkčnost činí byt atraktivním pro nájemníky, kteří hledají pohodlné ubytování v blízkosti moře.
-
Investoři: Vyhledávaný formát, dva balkony a výhled na hory zvyšují likviditu a potenciál nemovitosti v rozvíjející se čtvrti.
📍 Volitelné
Čtvrť se vyznačuje rozvíjející se infrastrukturou: obchody, kavárny a dopravní zastávky jsou plánovány v docházkové vzdálenosti. K moři a na nábřeží se lze rychle dostat autem. Byt je k dispozici v různých patrech rozestavěné budovy.
Chcete se dozvědět více o uspořádání, přesné ceně a podmínkách?
📞 Podrobnou kalkulaci a prezentaci získáte zanecháním žádosti na webových stránkách nebo nám napište na WhatsApp.













