Spektakularne studio z panoramicznym widokiem
🏡 Informacje ogólne:
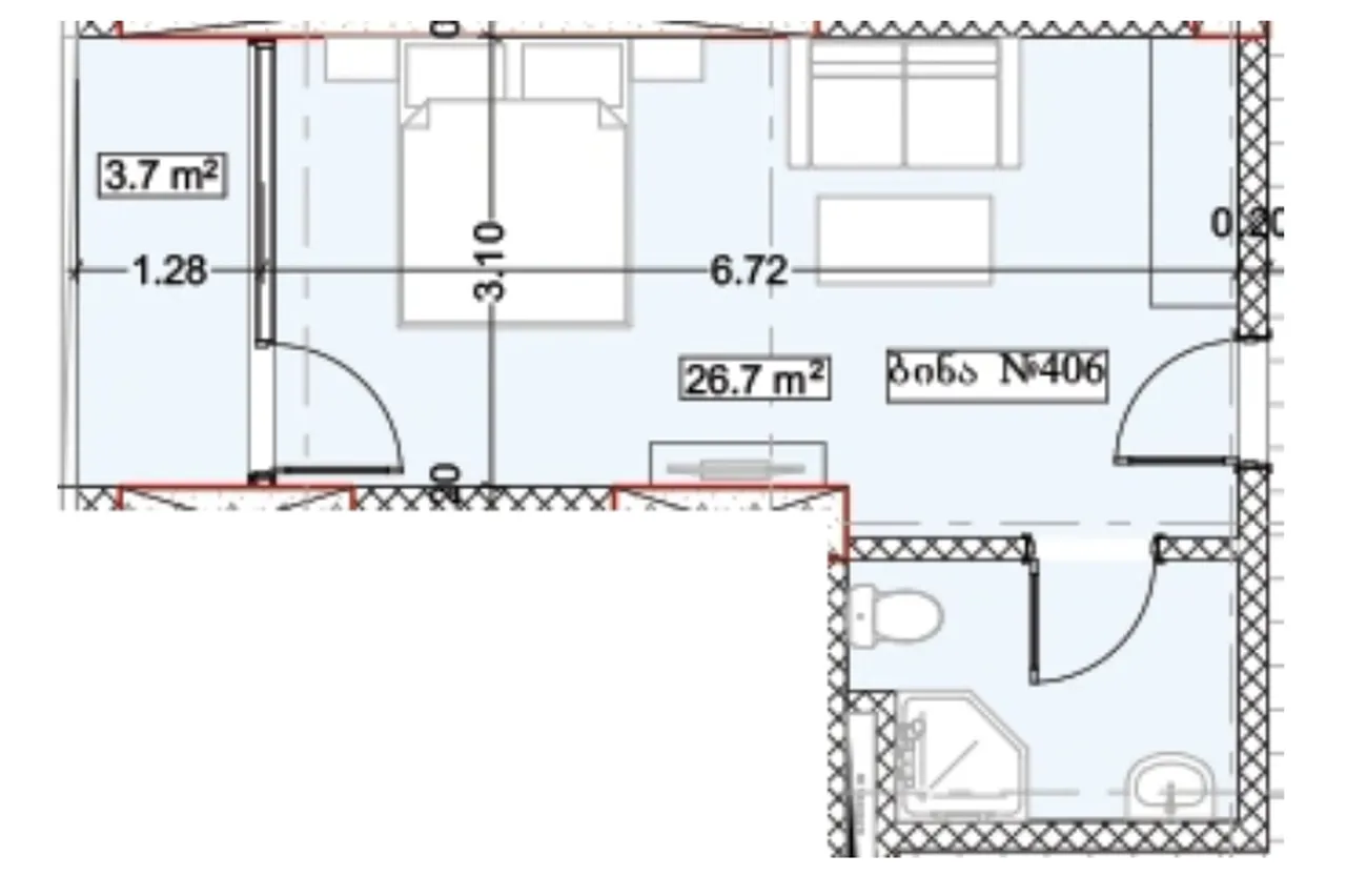
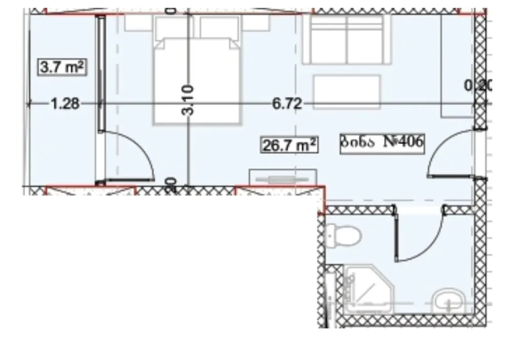
Nowoczesny kawalerka w kompleksie apartamentów w budowie "Modern Ultra". Całkowita powierzchnia wynosi 30.4 м² (powierzchnia mieszkalna - 26,7 m², balkon - 3,7 m²). Kupujesz nie tylko mieszkanie, ale także widok na historyczne centrum miasta Stare Miasto w Batumi.
📐 Układ i korzyści:
Przemyślana, otwarta przestrzeń, która z łatwością pomieści miejsca do relaksu, pracy i przyjmowania gości. Kluczową zaletą jest prywatny balkon (3,7 m²) i lokalizacja na 14 piętro. Gwarantuje to oszałamiający widok, brak widoku z ulicy i poczucie przestronności pomimo niewielkich rozmiarów.
👨👩👧 Odpowiedni dla:
-
Inwestorzy: Najbardziej płynny i pożądany format wynajmu turystycznego. Idealny do szybkiego startu z wysoką rentownością i minimalnymi inwestycjami.
-
Młodzież i studenci: Doskonałe pierwsze niezależne mieszkanie lub miejska rezydencja do nauki i pracy w najbardziej klimatycznej okolicy.
-
Podróżni: Idealna baza wypadowa na wakacje: wszystkie najciekawsze rzeczy - morze, kawiarnie, promenada - zaczynają się tuż za progiem.
📍 Dodatki:
Mieszkanie znajduje się w samym sercu miasta. Nie będziesz potrzebował transportu, aby dojść do kawiarni, sklepów z pamiątkami, sklepów i słynnej nadmorskiej promenady. Wysokie piętro zapewnia ciszę i najkorzystniejszą pozycję widokową.
Chcesz poznać dokładny koszt, warunki zakupu i plan wykończenia?
📞 Wystarczy zostawić prośbę na stronie internetowej lub napisać do nas na WhatsApp - a my wyślemy Ci pełną dokumentację tego studia w mgnieniu oka!












