Przestronne, nowoczesne studio z ogromnym balkonem
🏡 Informacje ogólne:
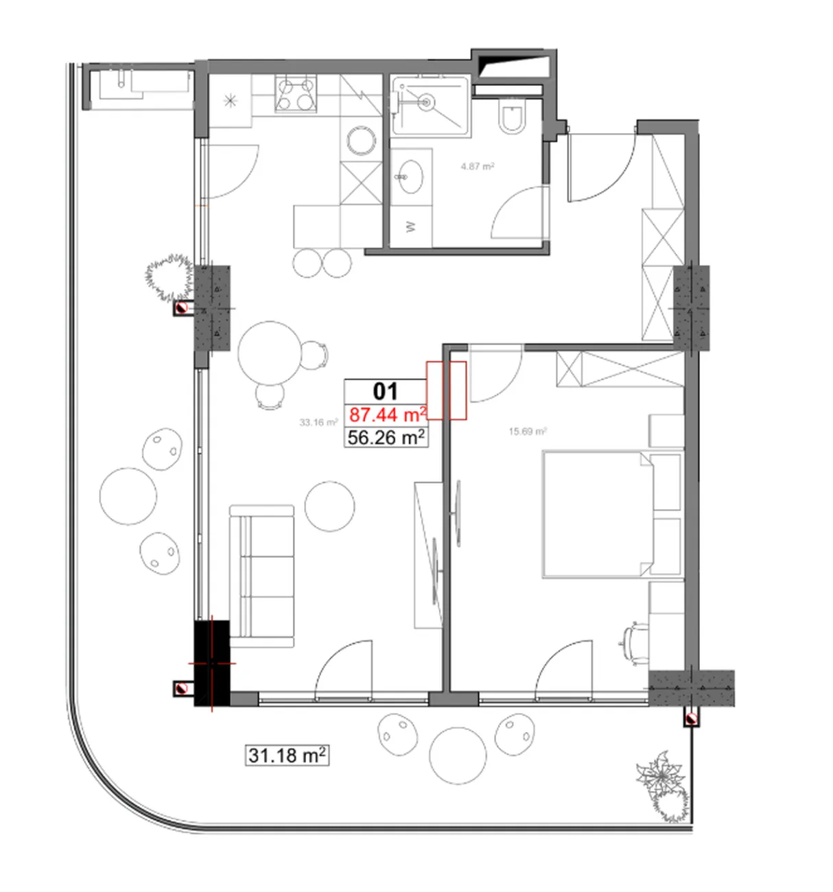
Mieszkanie z jedną sypialnią - Powierzchnia całkowita: 87,44 m² - Powierzchnia mieszkalna: 56,26 m² - Balkon: 31,18 m² - Kompleks mieszkalny "Queen's Residence" - Dzielnica New Boulevard, Batumi.
📐 Układ i korzyści:
Jest to prawdziwy apartament typu studio o europejskim formacie z przemyślaną wolną przestrzenią. Przestronny salon (33,16 m²) z łatwością pomieści zarówno część wypoczynkową, jak i jadalnię. Oddzielna sypialnia (15,69 m²) gwarantuje prywatność. Głównym atutem jest ogromny taras z balkonem (31,18 m²), który staje się pełnoprawnym przedłużeniem salonu i idealnym miejscem do relaksu. Nowoczesna łazienka (4,87 m²) jest wykończona w wysokim standardzie. Duże panoramiczne okna wypełniają przestrzeń światłem.
👨👩👧 Odpowiedni dla:
-
Mieszkać nad morzem: Idealny na komfortowy pobyt dla jednej osoby lub pary. Cichy, wyróżniający się kompleks, układ "wszystko na wyciągnięcie ręki" i bliskość głównych promenad tworzą wrażenie spersonalizowanego kurortu.
-
Dla zyskownej inwestycji: Batumi jest popularnym miejscem na wynajem. Taki nowoczesny i przestronny "pokój z jedną sypialnią" z dużym tarasem cieszy się maksymalnym popytem wśród turystów, zapewniając wysoką rentowność i płynność w przyszłości.
-
W przypadku świąt sezonowych: Twój prywatny zakątek w samym sercu kurortu. Zamknięty teren kompleksu i piesza odległość do morza, kawiarni i rozrywek to główne argumenty.
📍 Dodatki:
Mieszkanie znajduje się na 4 piętrze w budynku B. W pobliżu kompleksu - cała niezbędna infrastruktura: sklepy, kawiarnie, promenada spacerowa i transport publiczny. Nowy Bulwar to prestiżowa i dynamicznie rozwijająca się lokalizacja.
Zainteresowany tą korzystną ofertą? 🏙️
Uzyskaj pełną prezentację mieszkania, aktualne zdjęcia i warunki sprzedaży! Wystarczy zostawić aplikację na naszej stronie lub napisać na WhatsApp.













