Przestronne gniazdo z garderobą.
🏡 Informacje ogólne:
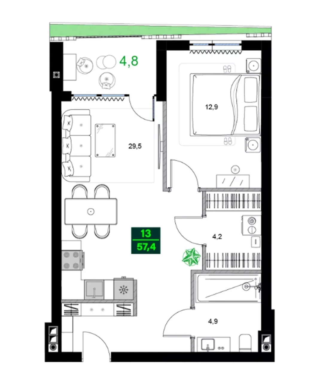
Przestronne mieszkanie z 1 sypialnią 57.4 м² w kompleksie statusu Summer 365. Położony przy głównej arterii kurortu - . Nowy bulwar w Batumi..
📐 Układ i korzyści:
Mieszkanie oferuje komfort rzadko spotykany w studiach: duża odizolowana sypialnia (12,9 m²), oddzielna garderoba (4,2 m²) i bardzo jasny salon z jadalnią 29.5 м². Łazienka jest połączona. Balkon 4,8 m² uzupełnia przestrzeń, dodając narożnik zapewniający prywatność. ✅ Główne plusy: Idealny porządek dzięki garderobie, przejrzystemu podziałowi na strefy, poczuciu przestronności i dużej ilości naturalnego światła.
👨👩👧 Odpowiedni dla:
-
Para lub singiel ceniący przestrzeń osobistą: Ma wszystko, co potrzebne do wygodnego życia: oddzielną sypialnię, system przechowywania i duży salon do relaksu. Najlepsze kawiarnie, restauracje i morze znajdują się tuż za progiem.
-
Turyści na wynajem długoterminowy: Ten układ z garderobą i balkonem jest szczególnie ceniony przez gości sezonowych. Gwarantuje stabilny popyt i konkurencyjne stawki najmu w najpopularniejszej dzielnicy.
-
Inwestorzy: Niezawodne aktywo o zwiększonej płynności. Przemyślany układ i elitarna lokalizacja sprawiają, że mieszkanie jest atrakcyjne pod wynajem, zapewniając wysoki roczny dochód i stały wzrost wartości.
📍 Dodatki:
Mieszkanie znajduje się w kompleksie w budowie. Nowy bulwar - to życie w centrum wydarzeń: piaszczysta plaża, słynna promenada, butiki, gastronomia i cała niezbędna infrastruktura znajdują się w odległości krótkiego spaceru.
Czy jesteś gotowy, aby omówić tę propozycję?
Aby otrzymać szczegółową prezentację lokalizacji, dokładny koszt i kalkulację finansową, zostaw zapytanie na naszej stronie internetowej lub napisz do nas na WhatsApp, aby uzyskać szybką odpowiedź.













