Przestronny pokój z jedną sypialnią i widokiem na okolicę
🏡 Informacje ogólne:
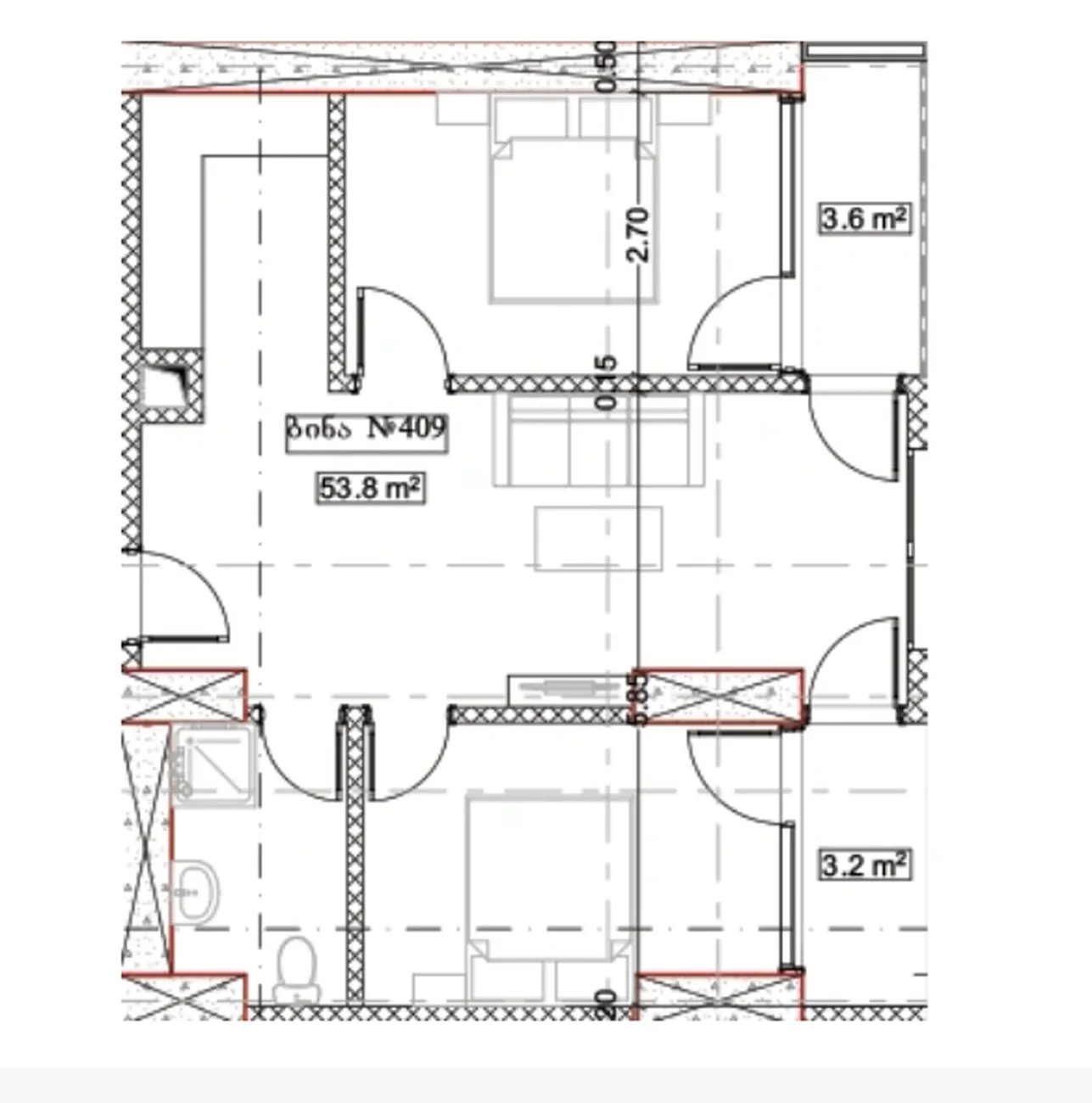
Patrzysz na najnowocześniejsze urządzenie Mieszkanie z 1 sypialnią o zwiększonej powierzchni w prestiżowej inwestycji "Modern Ultra". Jego całkowita powierzchnia wynosi 60.60 м² (powierzchnia mieszkalna - 53,8 m², balkon - 6,8 m²). To rzadka oferta dla miłośników przestrzeni w samym sercu miasta Stare Miasto w Batumi.
📐 Układ i korzyści:
To niestandardowy układ, który łączy w sobie zalety kawalerki i przestronność dwupokojowego mieszkania. Przestronny, odizolowany pokój z łatwością stanie się przytulną sypialnią, a duża strefa kuchenno-salonowa pomieści zarówno grupę jadalną, jak i miejsce do odpoczynku. Głównym atutem jest ogromny balkon o powierzchni 6,8 m²w rzeczywistości w pełni odkryty taras. Lokalizacja na 15 piętro Gwarantuje wspaniałe widoki, maksymalne nasłonecznienie i absolutną prywatność.
👨👩👧 Odpowiedni dla:
-
Koneserzy komfortu i przestrzeni: Idealny dla singla lub pary, która nie chce rezygnować z komfortu wybierając format pokoju jednoosobowego. Jest tu miejsce na wszystko.
-
Inwestorzy: Wyjątkowa oferta o podwyższonej rentowności. Duża powierzchnia i taras pozwalają na wyższą stawkę czynszu, szczególnie w segmencie premium, zapewniając doskonały zwrot z inwestycji.
-
Kreatywność: Przestrzeń, którą można zorganizować zgodnie z własnymi potrzebami: studio do pracy, biblioteka lub strefa hobby bez poczucia ciasnoty.
📍 Dodatki:
Lokalizacja oferuje najwyższy standard życia bez samochodu. Sklepy, restauracje, butiki i słynna promenada znajdują się w odległości spaceru. Wysokie piętro w historycznym centrum to zawsze wyjątkowy widok i poczucie szczególnego statusu.
Chcesz poznać układ, szczególne warunki i aktualną wartość tej działki?
📞 Aby uzyskać pełną dokumentację, wystarczy zostawić prośbę na stronie internetowej lub wysłać wiadomość na WhatsApp. Wkrótce się z Tobą skontaktujemy!













