Orman teraslı rahat stüdyo
🏡 Genel Bilgiler:
Yapım aşamasındaki bir eko-komplekste 34,30 m²'lik rahat ve pratik stüdyo VR Orman Plajı. Shekvetili'nin (Batum) eşsiz doğal bölgesinde, altın kumlu plajın kalıntı bir çam ormanıyla komşu olduğu - tatil ve karlı bir yatırım için ideal bir teklif.
📐 Düzen ve Avantajlar:
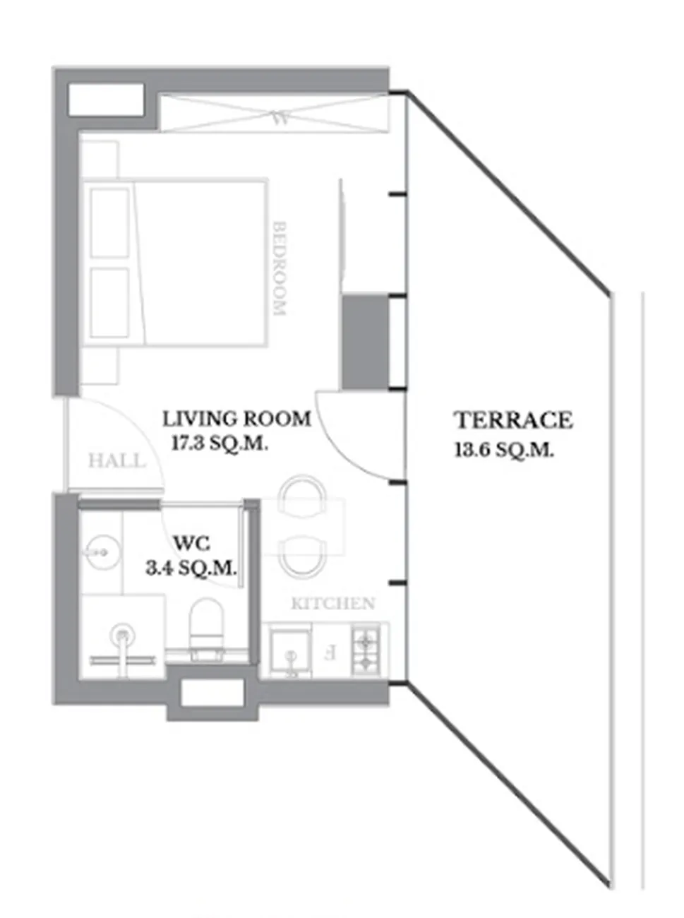
Akıllı yerleşim planıyla pratik yaşam alanı (17,3 m²) oturma odası, yatak odası ve mutfağı etkili bir şekilde birleştirir. Ana özellik, neredeyse yaşam alanına eşit olan ve doğada kendi özel açık yaşam alanınız haline gelen geniş terastır (13,6 m²). Temiz bir banyo (3,4 m²) bitirilmeye hazırdır. İçeride kompakt rahatlık ve dışarıda özel alanın mükemmel kombinasyonu.
👨👩👧 Şunlar için uygundur:
-
Yatırımcılar: Yeni bir eko-tatil köyünde geniş bir terasa sahip bir stüdyo, en likit formatlardan biridir. Düşük giriş eşiği, yüksek sezonluk kira talebi ve Shekvetili'nin eşsiz doğal konumu, hızlı geri ödeme ve istikrarlı gelir sağlar.
-
Dinlendirici bir tatilin hayranları: Doğa ile bütünleşmek için ideal bir özel köşe. Sessizlik, iğne yapraklı hava ve sahile yakınlık, şehrin koşuşturmasından uzakta tam bir rahatlama için koşullar yaratır.
📍 Ekstralar:
Kompleks, gelişmekte olan bir altyapıya sahip gelecek vaat eden bir tatil köyü kümesinde inşa edilmektedir. Yakınlarda kafeler, mağazalar, rekreasyon tesisleri olacaktır. "Shekvetili" milli parkının toprakları ve uzun bir kumsal yürüme mesafesindedir.
Şartları ve koşulları öğrenmek ve getiriyi hesaplamak ister misiniz?
📲 Geliştiriciden ayrıntılı bir finansal plan, yerleşim planı ve özel koşullar için web sitesinde bir başvuru bırakın veya WhatsApp'tan bize yazın. Sizin için dijital formatta eksiksiz bir belge paketi hazırlayacağız!













