Cosy studio with spacious balcony
🏡 General Information:
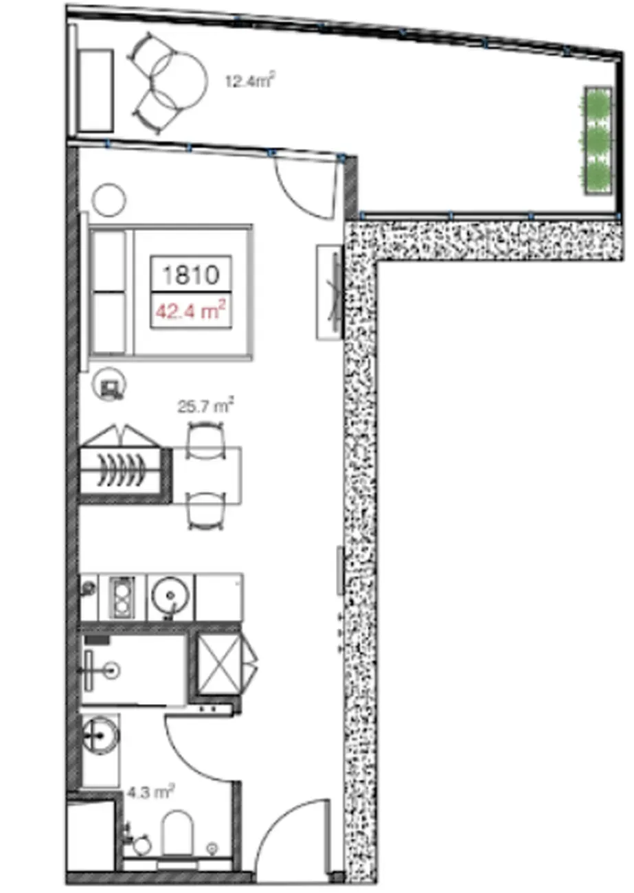
Compact and light studio total area 42,4 м² in a modern apartment complex Metropol Oval on the Alley of Heroes in Batumi. Ideally located within walking distance to the sea and the lively seafront.
📐 Layout and Benefits:
A spacious single space (25,7 м²) harmoniously unites the living and sleeping areas, creating an atmosphere of freedom and cosiness. The flat is complemented by separate modern bathroom (4.3 m²) и large balcony (12.4 m²)which becomes the ideal place for morning coffee or evening relaxation with a view of the city. Large windows flood the interior with natural light, and the well thought-out layout makes efficient use of every metre.
👨👩👧 Suitable for:
✅ Tourists and for rent: The proximity to the sea, cafes, restaurants and the promenade ensures a high demand for short-term rentals, especially during the holiday season, guaranteeing a stable income.
✅ Investors: Compact and liquid format in the most sought-after area of Batumi, growing property market and income-generating rental potential make this studio a profitable investment with a quick return on investment.
✅ Young professionals or students: Functional space, modern finishes and proximity to infrastructure create comfortable conditions for living, studying or working.
📍 Extras:
The flat is located in a modern complex under construction with developed infrastructure. In walking distance - shops, transport, promenade and parks. This is a great opportunity to buy modern accommodation in the heart of resort life.
Want to know the details, terms of purchase and current price?
Leave a request online or WhatsApp - and we will promptly send you a full description of the object and calculation of profitability!













