WPCS 2.2.0.5
"Status House"

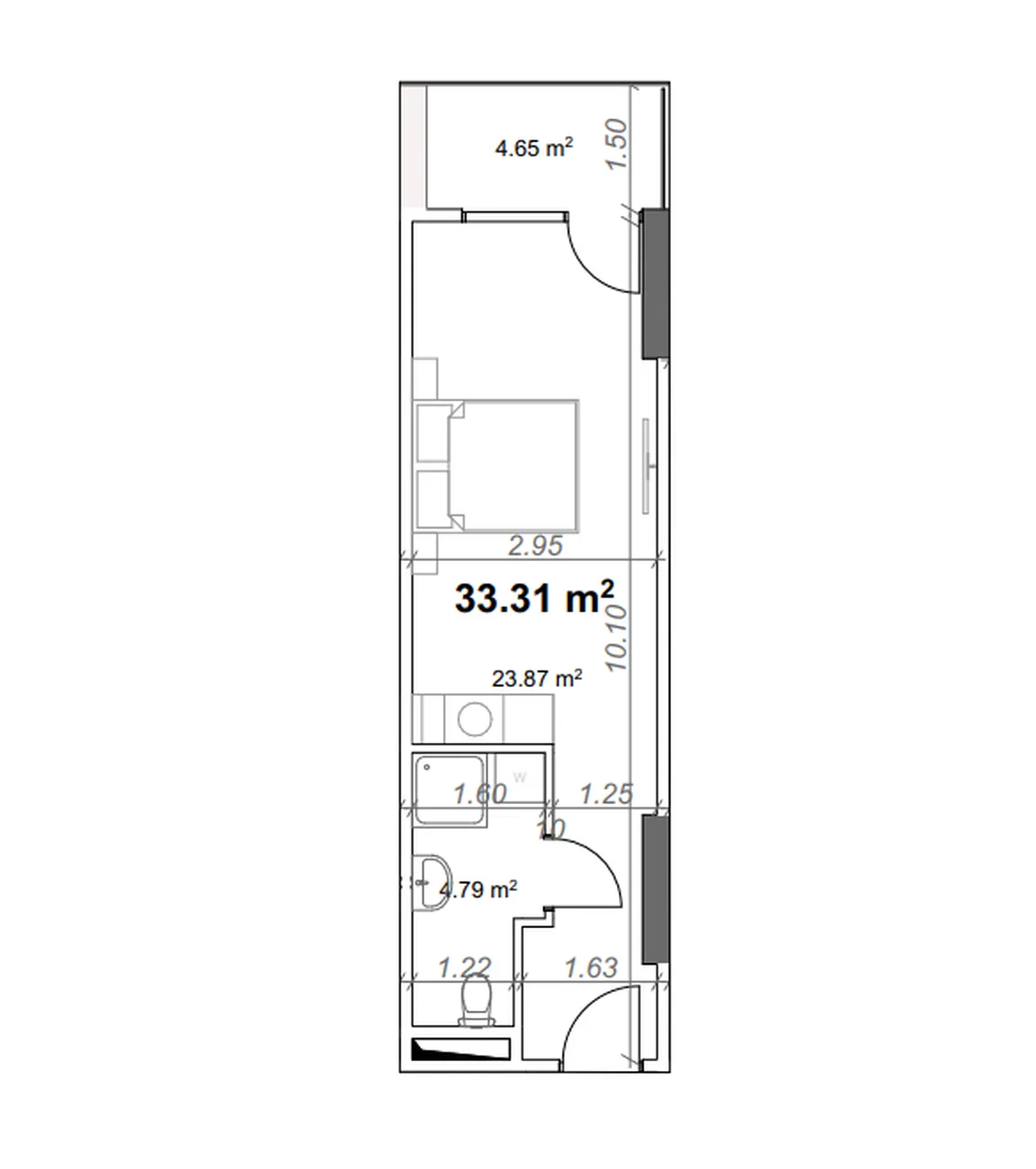
Compact and ergonomic studio of 33.31 m² in "Status House"

from $33 972
$1 200/м²
Request current price and availability of the object in WhatsApp
Batumi, New Boulevard
33.31м²

Facility Characteristics

Ask a question about the object

Property developer: ELT Building

Market: Primary

The age of the house: New building

Condition: Does not require repair

City Batumi, New Boulevard

Floor: 4

Area: 33.31 м²

Property Type: Studio

Property Status: It's under construction

Location

Places nearby
Shopping centre
7 min.
Airport
12 min.
Shopping centre
12 min.
Airport
17 min.
Shopping centre
4 min.
Airport
6 min.

Payment plan

Cost from$33 972
Terms and payment plans change regularly, our specialist will provide up-to-date information.
Initial instalment
15%
In transferring
85%
Calculate the payment

Additional features

 Smart studio with sea view

🏡 General information
Compact and ergonomic studio with a total area of 33.31 m² including a balcony of 4.65 m². Located in a modern residential complex ELT Status House on New Boulevard in Batumi - in the very centre of resort life, just a few minutes from the sea and the lively seafront.

📐 Layout and benefits
The flat is a well thought-out single space (23.87 m²) with flexible zoning into bedroom, living room and kitchen areas. The bathroom is separate (4.79 m²) and the balcony adds additional space for relaxation. Large windows flood the room with light, creating a cosy and open atmosphere.

👨‍👩‍👧 Suitable for

  • Investors: stable demand for studios for short-term rentals, quick payback and minimal maintenance costs.

  • Students and young professionals: economical format, excellent transport accessibility and proximity to cafes, beach and entertainment.

  • Tourists (when renting): everything you need for your holiday is within walking distance - from the sea to restaurants and walking areas.

📍 Additionally
The neighbourhood is surrounded by well-developed infrastructure: shops, public transport stops, cafes and a picturesque promenade. The flat is available on different floors - you can choose the option with your preferred view and level of privacy.

✨ Request an estimate and personalised terms!
For detailed information, photos and personalised offer leave an application on the website or write to WhatsApp. We will help you to make a profitable investment in Batumi property!

Object Catalogue
Receive on WhatsApp
Karina
Property expert

    Email us on messengers:
    Ask a question
    Find a property
    Get the current catalogue

    Residential property selections

    Our contacts
    The Residence
    Georgia, Batumi, Sherif Khimshiashvili str. 1, office 1204
    Didn't find what you were looking for?
    Answer 4 questions - get a personalised selection of objects for you
    Start selection
    Didn't find what you were looking for?
    Get a ready-made catalogue of the top properties in WhatsApp or a customised selection according to your criteria