Cosy flat with isolated room in Batumi
🏡 Key parameters
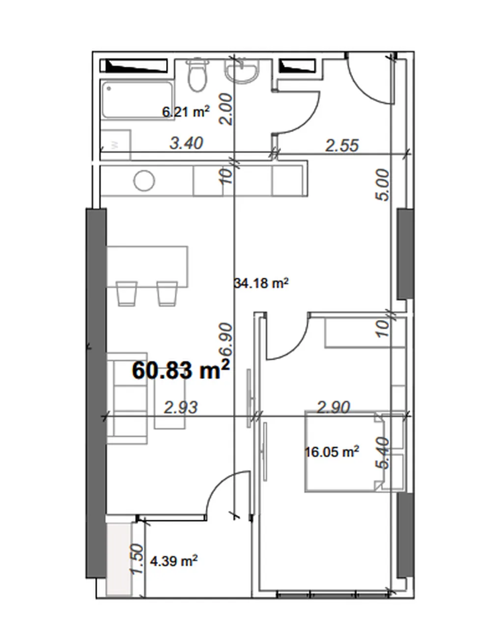
Comfortable 1 bedroom flat with a total area of 60.83 m² including a balcony (4.39 m²). Located in a modern residential complex ELT Status House on New Boulevard in Batumi - in a prestigious neighbourhood by the sea.
📐 Layout and benefits
The flat consists of an isolated room (16.05 m²), which can be set up as a bedroom or study, and a spacious living room (34.18 m²) with a kitchen area. The bathroom is separate (3.40 m²) and the balcony adds additional space for relaxation. The layout provides privacy and efficient use of space, while the large windows flood the flat with light.
👨👩👧 The perfect choice for
-
Investors: stable rental demand, high liquidity and upside potential in a dynamic neighbourhood.
-
Young couples or a single person: privacy, modern finishes and proximity to entertainment.
-
Tourists (when renting)Walking distance to the sea, cafes, restaurants and promenade.
📍 Additionally
In walking distance to all necessary infrastructure: shops, transport, cafes and the sea promenade. The flat is located on one of the middle or high floors, which provides a good view and silence.
✨ Interested in buying?
Get detailed information, photos and terms of purchase - just leave a request on the website or write to WhatsApp. We will help you with selection and registration!













