Balanced layout by the sea
🏡 General information
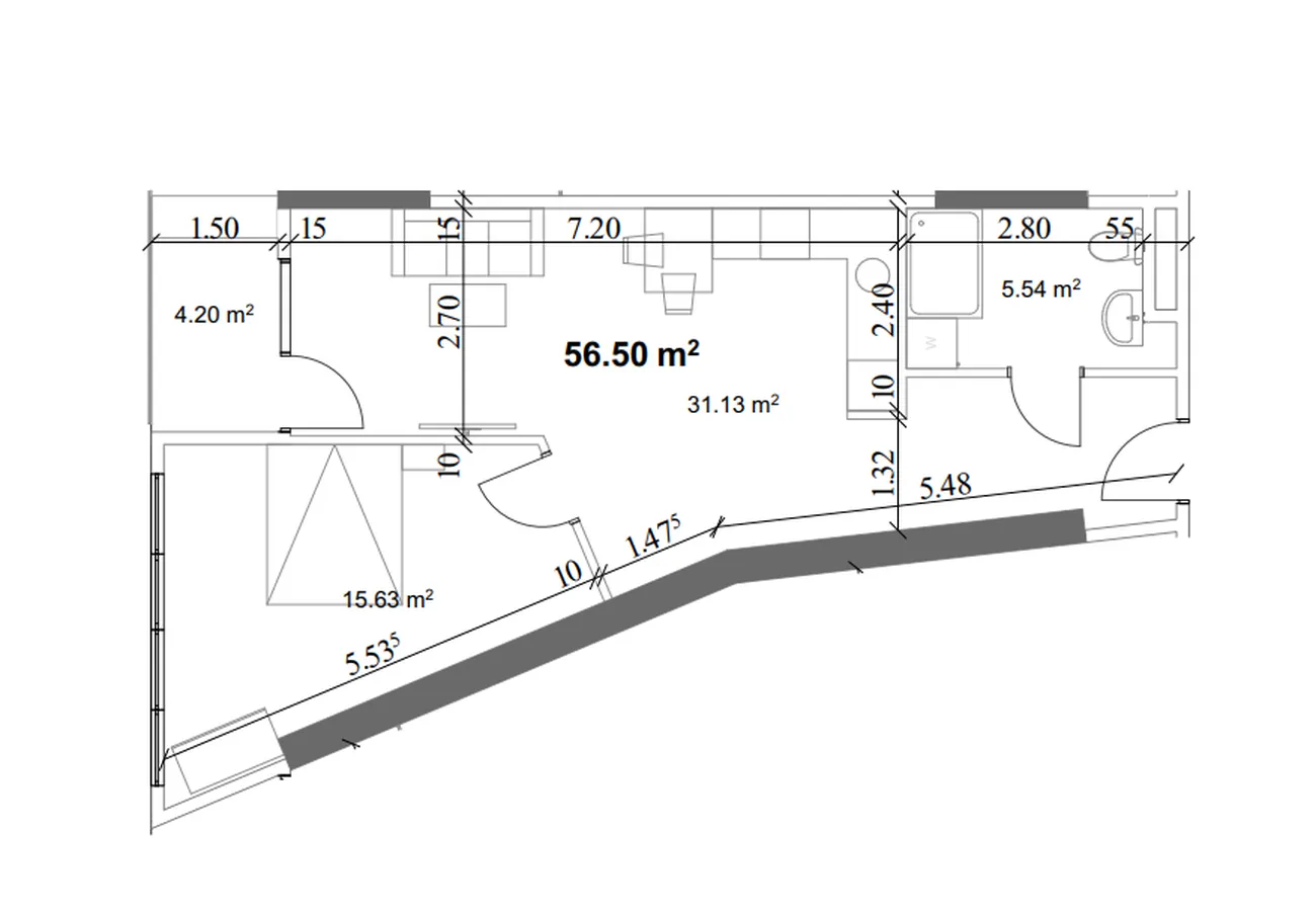
Harmonious 1-bedroom flat of 56,50 m² including a balcony of 4,20 m². Located in a conceptual project ELT OXY Residence on New Boulevard in Batumi - a unique life-hotel complex created in partnership with the international Barceló Hotels chain.
📐 Layout and benefits
The flat offers balanced zoning: a bright living room (31.13 m²) with kitchen area and an isolated room (15.63 m²), ideal for a bedroom or study. The separate bathroom (5.54 m²) is comfortably sized and the balcony adds a corner for morning coffee. Panoramic windows flood the space with natural light, emphasising a sense of freedom and order.
👨👩👧 Suitable for
-
InvestorsThe management of Occidental Hotel ensures stable income, and the life-hotel format guarantees high liquidity and stable rental demand.
-
Young professionals and couples: functional layout, room privacy and access to all the services of a 4-star hotel - from concierge to daily housekeeping.
-
Tourists (when renting): located in the epicentre of resort life, within walking distance of the sea, restaurants, cafes and seafront.
📍 Additionally
The complex is integrated into the developed urban infrastructure: shops, transport hubs, cafes and pedestrian routes. The flat is available on different floors - you can choose the option with the best view and level of privacy.
✨ Get personalised terms and conditions today!
For detailed information, photos and a personalised offer, leave an application form on the website or write to WhatsApp. Your life in the OXY Residence format starts here!













