Smart space with hotel service
🏡 General information
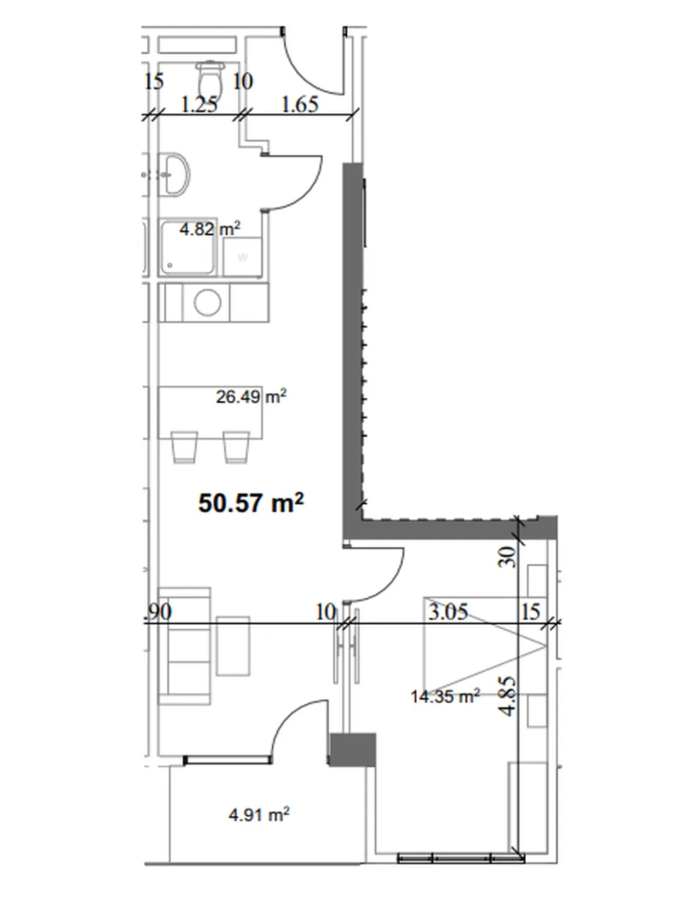
Practical 1 bedroom flat with a total area of 50,57 m² including a balcony of 4,91 m². Located in an innovative project ELT OXY Residence on New Boulevard in Batumi - a life-hotel format complex created in partnership with the international chain Barceló Hotels.
📐 Layout and benefits
The flat has an efficient layout: a bright living room (26.49 m²) with a kitchen area and an isolated room (14.35 m²), which can be set up as a bedroom or study. The bathroom is separate (4.82 m²) and the balcony adds a pleasant place to relax. Panoramic windows fill the space with light, creating an atmosphere of openness and comfort even in a compact size.
👨👩👧 Suitable for
-
InvestorsThe management of Occidental Hotel ensures stable income, and the life-hotel format guarantees high liquidity and stable rental demand.
-
Young professionals and students: functional space, room privacy and full access to the services of a 4-star hotel, from concierge to daily housekeeping.
-
Tourists (when renting): located in the epicentre of resort life, within walking distance of the sea, restaurants, cafes and seafront.
📍 Additionally
The complex is surrounded by developed urban infrastructure: shops, transport hubs, cafes and pedestrian routes. The flat is available on different floors - you can choose the option with the best view and level of privacy.
✨ Get customised terms and conditions today!
For detailed information, photos and a personalised offer, leave an application form on the website or write to WhatsApp. Your life in the OXY Residence format starts here!













