Efficient investment at the centre of events
🏡 General information
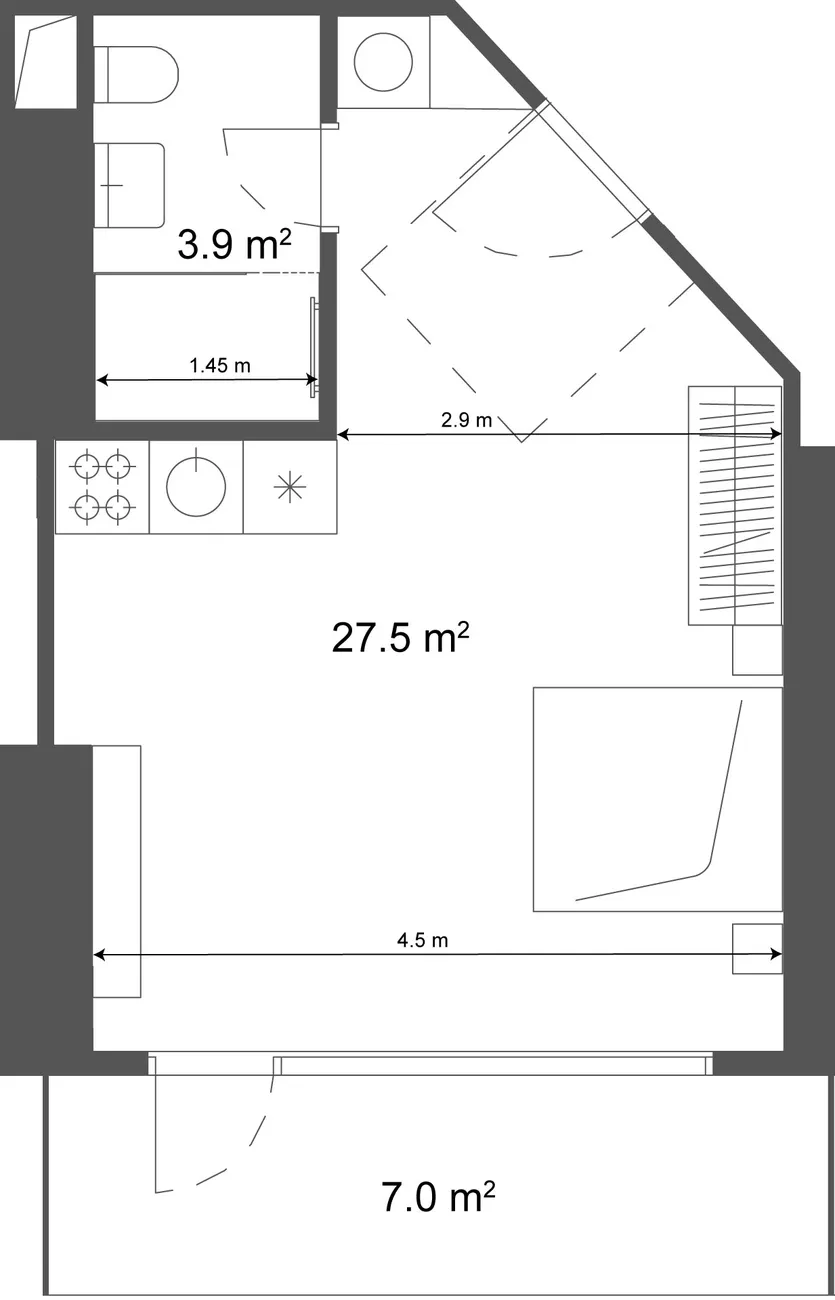
Clever studio in a branded compound Ramada Residences by Wyndhamlocated in the epicentre of resort life on the Alley of Heroes, Batumi. The total area is 34,50 м²including spacious balcony of 7.0 m². The residential area is . 27,5 м².
📐 Layout and benefits
The flat offers a compact and ergonomically designed flat studio layout with a combined lounge, cooking and sleeping area. ✅ Its key plus point is that large balcony (7.0 m²)It is a great advantage for renting the apartment, which significantly expands the usable space. The clever organisation allows you to accommodate everything you need, and the separate bathroom (3.9 m²) adds to the comfort.
👨👩👧 Suitable for
-
Income-oriented investors: This is an ideal asset to enter the market. With a relatively low purchase price, Ramada's location and brand ensure consistently high rental demand. The option of full "close and leave" management turns it into a source of passive income.
-
Tourists: Studios are the most popular and affordable format for short term accommodation for couples or solo travellers. Being a stone's throw away from the sea and all amenities makes it an ideal holiday base.
-
Young Professionals: A great option for dynamic urban living with a full service package without the hassle.
📍 Optional
Alley of Heroes is the main tourist artery where life is bustling all year round. All shops, cafes, transport and the seafront are within walking distance. Professional management from the company "River Rock" guarantees safety and profitability of your investment. The flat is available on different floors.
Want to calculate the exact return on this investment?
📞 For a ready-made financial plan, leave a request on the website or write to us on WhatsApp.













