Studio elegante in prima linea
🏡 Informazioni generali
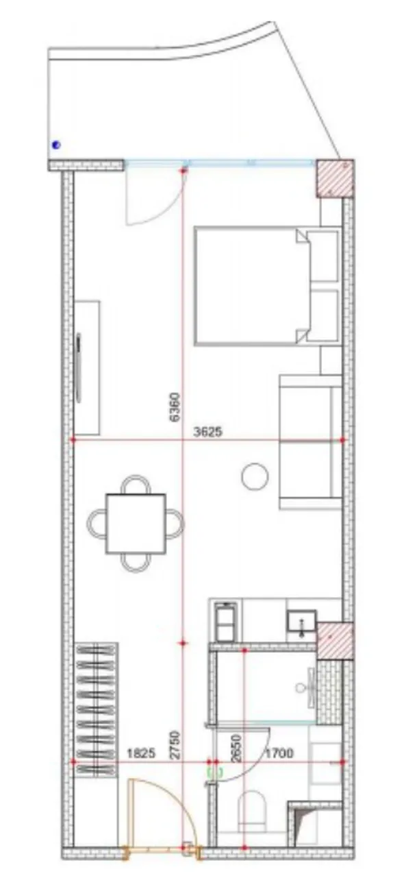
Moderno monolocale con una superficie totale di 36,7 m² (zona giorno - 31,2 m²) nel complesso premium Bamboo Beach Tsikhisdziri. Posizione - prima costa nel pittoresco villaggio di Tsikhisdziri, al confine con Batumi e Kobuleti. Luogo unico: i boschetti di bambù, l'aria pulita e il mare a 40 metri dalla casa creano un microclima ideale per le attività ricreative durante tutto l'anno.
📐 Layout e vantaggi
Spazio aperto pensato senza inutili divisori: la zona soggiorno, la cucina compatta e la zona notte sono organicamente combinate in un unico volume. Il balcone con vetrate panoramiche diventa un'estensione della stanza: qui si può fare colazione all'aria aperta o prendere un tè serale con vista sul mare o sulle verdi colline. La finitura "chiavi in mano" consente di iniziare a utilizzare l'appartamento immediatamente per vacanze personali o per affittare senza ulteriori investimenti.
👨👩👧 Adatto per
*️⃣ Famiglie con bambini - La suddivisione in zone competenti permette di organizzare comodamente la vita quotidiana con un bambino. Gli asili e le scuole di Kobuleti sono vicini e l'atmosfera tranquilla ed ecologica è ideale per le vacanze in famiglia.
*️⃣ Turisti - Lo studio è perfetto per affitti giornalieri: la spiaggia privata, le piscine, la spa, il parco acquatico e i ristoranti in loco garantiscono un'elevata domanda stagionale.
*️⃣ Investitori - la società di gestione dello sviluppatore Redco si occupa della manutenzione completa e della locazione, fornendo ai proprietari un reddito passivo. La posizione in prima linea e lo status di zona turistica libera (Kobuleti) garantiscono liquidità e crescita del capitale.
📍 Inoltre
A pochi passi - la storica fortezza di Petra (500 m), il lungomare e le fermate dei mezzi di trasporto. Nel complesso: spiaggia privata, piscine all'aperto e al coperto, centro fitness, parco acquatico, spa, porto turistico e sicurezza 24 ore al giorno. Per il centro di Batumi - 10 km, per l'aeroporto - 15 minuti in auto.
Per conoscere il prezzo esatto, le condizioni di acquisto e il reddito da locazione previsto, basta lasciare una richiesta sul sito web o scriverci su WhatsApp. Saremo lieti di aiutarvi nella scelta!













