Villa con piscina sul mare
🏡 Informazioni generali:
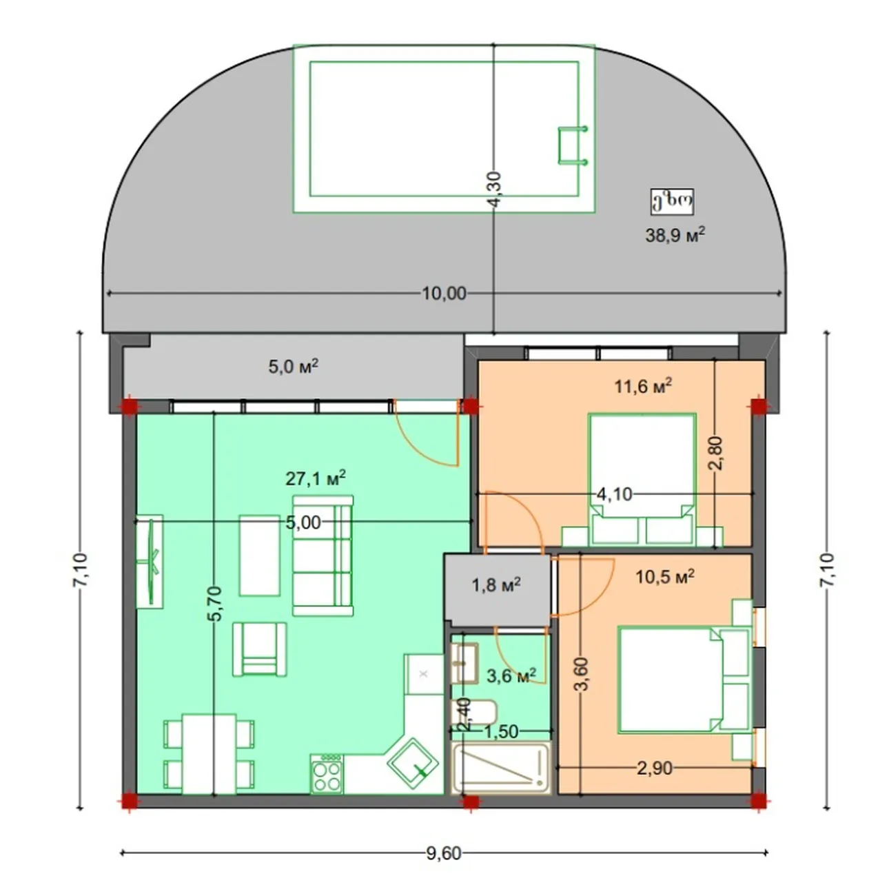
Spazioso villa bilocale area totale 140 м² si trova in una comunità recintata Villaggio Homex al confine tra Batumi e Kobuleti - in una zona ecologicamente pulita, a pochi minuti dalla costa del Mar Nero. Si tratta di un raro formato di abitazione, in cui ogni dettaglio è stato pensato per una vita confortevole e per una ricreazione completa.
📐 Layout e vantaggi:
La villa è stata progettata tenendo conto dei moderni standard europei. Su due livelli si trovano due camere da letto, spazioso soggiornocon angolo cottura e due bagni. Le altezze dei soffitti raggiungono 3 metrie le finestre panoramiche a risparmio energetico riempiono gli ambienti di luce. L'orgoglio principale - piscina privata nell'area circostante, creando un'atmosfera da spa privata proprio fuori casa.
👨👩👧 Adatto per:
-
Famiglie con bambini: L'insediamento chiuso e sorvegliato, l'assenza di autostrade rumorose e la presenza di una propria piscina rendono questo luogo sicuro e accogliente per i bambini. Nelle vicinanze si trovano asili, scuole e le infrastrutture sviluppate di Kobuleti.
-
Turisti e investitori: Le ville con piscina in questa zona sono sempre più richieste sul mercato degli affitti. La vicinanza al mare, l'atmosfera da località turistica di Kobuleti e la comoda accessibilità ai trasporti (Batumi è a 20 minuti di distanza) garantiscono un'elevata domanda di affitti sia giornalieri che a lungo termine.
📍 Extra:
Il villaggio si trova a pochi passi dalla spiaggia, dai supermercati, dai bar e dalle fermate dei mezzi pubblici. Il territorio dell'Homex Village è paesaggistico, dotato di un sistema di videosorveglianza e di una sicurezza 24 ore su 24. La villa viene offerta nel formato "cornice nera" con l'opzione di finiture personalizzate, e disponibili anche Rata di 12 mesi - condizioni flessibili per un acquisto confortevole.
📲 Volete verificare la disposizione, i dettagli delle finiture e il prezzo attuale? Per ottenere tutti i dettagli su questa villa è sufficiente lasciare una richiesta sul sito web o inviarci un messaggio su WhatsApp. Il numero di case con piscina privata nel progetto è limitato: non perdete l'occasione di diventare proprietari di un'accogliente casa sul mare.













