A smart one-bedroom with a walk-in wardrobe
🏡 General Information:
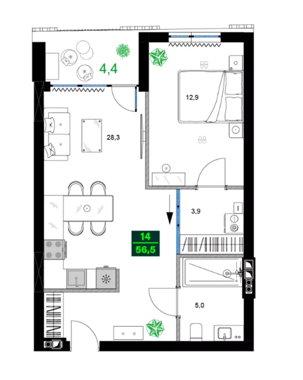
Spacious 1-bedroom flat with total area of 56.5 м². Thoughtful layout with separate utility area in a modern complex Summer 365 in the main New Boulevard in Batumi..
📐 Layout and Benefits:
The flat offers isolated bedroom (12.9 m²) and a large living-dining room 28.3 м². The key domestic advantage is . separate laundry room with cloakroom (3.9 m²)which solves the issues of storage and cleaning. The bathroom is combined. The flat is complemented by balcony 4.4 m². ✅ Main pluses: privacy of the sleeping area, maximising functional use of space, tidiness in the main rooms.
👨👩👧 Suitable for:
-
One person or a couple: Ideal for comfortable living without household inconveniences. A laundry-cloakroom frees up living space, and the location in the heart of resort life allows you to enjoy Batumi to the fullest.
-
Long-term leases: A flat with laundry facilities is a unique advantage for this format, especially attractive for tenants renting for a season or several months. It increases competitiveness and rental value.
-
Investors: A reliable asset with improved characteristics in the most liquid location. The high comfort of the layout ensures stable demand, low competition and good return on investment.
📍 Extras:
The flat is located in a complex under construction. New Boulevard - is the best Batumi has to offer: central beach and promenade within walking distance, as well as countless restaurants, cafes, shops and entertainment.
Want to know all the details of this offer?
For full information on the layout, exact cost and yield calculation, leave a request on our website or write to us on WhatsApp.












