Centre ville, revenus passifs
🏡 Informations générales
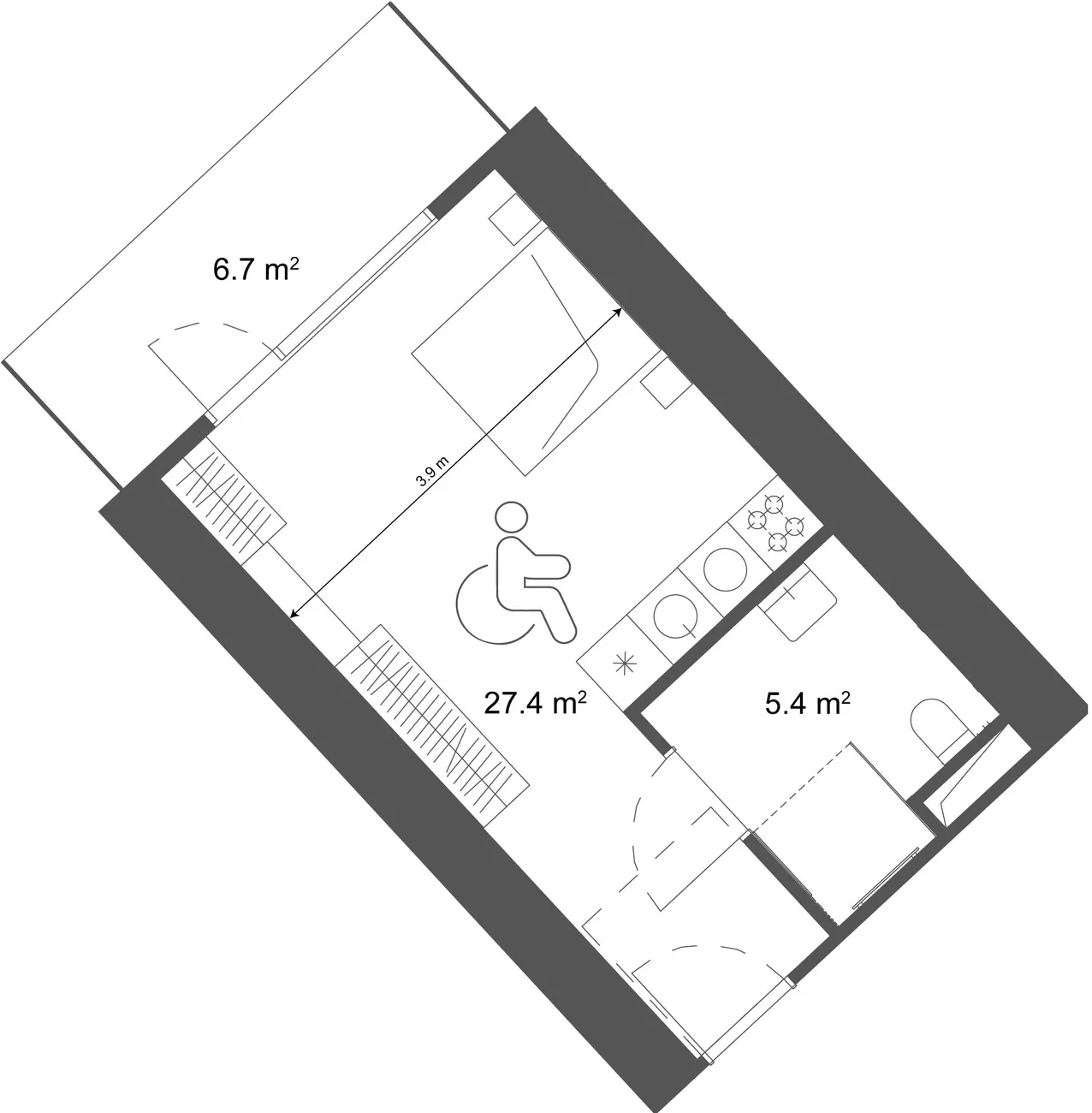
Fonctionnel studio dans un complexe haut de gamme Ramada Residences by WyndhamSitué sur la principale allée touristique de Batumi - La marche des héros. La superficie totale du terrain est de 34,10 м²y compris balcon 6.7 m². La zone résidentielle est . 27,4 м².
📐 Présentation et avantages
L'appartement offre une conception compacte et ergonomique. aménagement du studiooù la cuisine, le séjour et les chambres sont combinés pour créer une sensation d'espace. ✅ Balcon privé Il s'agit d'un complément agréable, qui prolonge l'espace de vie et offre un lieu de détente. L'agencement astucieux et la salle de bains complète (5,4 m²) répondent à toutes les exigences du confort moderne.
👨👩👧 Convient pour
-
Les investisseurs à la recherche d'un actif "prêt à l'emploi" : Il s'agit d'un investissement rentable dont la rentabilité est évidente. L'emplacement dans l'épicentre touristique garantit une demande de location stable, et le système de gestion "fermer et partir" élimine complètement les soucis opérationnels du propriétaire.
-
Touristes : Le studio est le format le plus populaire et le plus abordable pour les vacanciers à Batumi. L'accès pas à pas à la mer, aux cafés et aux attractions rend l'hébergement aussi pratique que possible.
-
Jeunes professionnels : Une excellente option pour vivre au cœur de la ville avec des services hôteliers complets sans payer trop cher pour un hôtel.
📍 Facultatif
Le complexe est situé sur Heroes Alley, à distance de marche de la mer, des parcs, des magasins et de toutes les infrastructures clés. La gestion professionnelle de la société "River Rock" garantit la sécurité de l'objet et sa rentabilité. L'appartement est disponible à différents étages.
Vous souhaitez obtenir un calcul de la rentabilité potentielle ?
📞 Pour obtenir des conseils et des détails, laissez une demande sur le site web ou envoyez-nous un message sur WhatsApp.













