סטודיו אידיאלי להתחלה
🏡 מידע כללי:
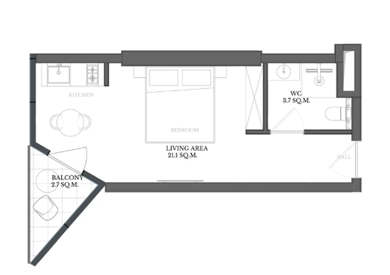
דירת סטודיו קומפקטית ומודרנית עם חדר אחד בשטח כולל של 27.5 מ"ר (שטח מגורים — 24.8 מ"ר). השטח כולל מרפסת 2.7 מ"ר. זוהי הזדמנות משתלמת להתחיל במתחם פופולרי VR יער חוף באתר הנופש שקויטלי, באטומי.
📐 תכנון ויתרונות:
חלל פתוח ותמציתי מאחד את הסלון ואת אזור המטבח (21.1 מ"ר). חדר הרחצה משולב. למרות גודלה הקומפקטי, הדירה כוללת את כל הדרוש לשהייה נוחה, ו מרפסת מוסיף אפשרות נעימה לבילוי באוויר הצח. ✅ יתרונות: שטח יעיל ביותר, תכנון מודרני, חלל מואר ומוכנות לאכלוס מהיר.
👨👩👧 מתאים ל:
-
משקיעים המעריכים נזילות: הפורמט המשתלם ביותר בשוק הנופש. השקעה מינימלית, עלויות תחזוקה נמוכות וביקוש גבוה ויציב להשכרה מבטיחים החזר השקעה מצוין.
-
מטיילים בודדים: פינה אישית מושלמת למנוחה ליד הים. כל הנוחיות במקום אחד, שאינו דורש תחזוקה מורכבת, ובמרחק פסיעה מהחוף.
-
ההשקעה הראשונה בנדל"ן: נכס מצוין להתחלה, עם מחיר כניסה נגיש לשוק הנדל"ן הנופש המבטיח של גאורגיה, עם פוטנציאל לעליית ערך.
📍 בנוסף:
הדירה ממוקמת במתחם מודרני הנמצא בבנייה. אזור שקווטלי מציע את כל התשתיות הדרושות לבילוי: חוף חולי, טיילת, בתי קפה, מסעדות וחנויות במרחק הליכה.
מוכנים לשקול את ההצעה המשתלמת הזו?
למדו את העלות המדויקת, תנאי הרכישה וחישוב התשואה הפוטנציאלית, על ידי הגשת בקשה באתר שלנו או שליחת הודעה ב-WhatsApp לקבלת ייעוץ מיידי.













