סטודיו קומפקטי להשקעה מושלמת
🏡 מידע כללי
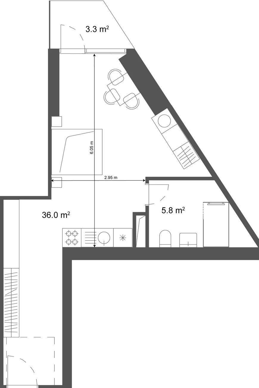
פרקטית סטוּדִיוֹ במתחם ממותג רמדה רזידנסס ביי ווינדהם, הממוקם בלב חיי הנופש ב שדרת הגיבורים, באטומי. השטח הכולל הוא 39.30 מ"ר, כולל מרפסת 3.3 מ"ר. אזור מגורים — 36 מ"ר.
📐 פריסה ויתרונות
הדירה מציעה תכנון סטודיו מחושב עם אזור משולב של סלון, מטבח ומיטה, מה שיוצר תחושה של מרחב. ✅ נוכחות מרפסת מוסיף אפשרויות לבילוי באוויר הפתוח. חדר רחצה מרווח (5.8 מ"ר) מבדיל את הנכס הזה לטובה, ומספק נוחות נוספת. התכנון פונקציונלי ביותר ומנצל ביעילות כל מטר.
👨👩👧 מתאים ל
-
משקיעים המחפשים נכס אמין: אפשרות אידיאלית לכניסה לשוק. מחיר כניסה סביר יחסית בשילוב עם המותג Ramada וניהול "סגור ונסע" מבטיח הכנסה פסיבית יציבה מהשכרה עם מינימום טרחה.
-
תיירים: הפורמט המבוקש ביותר עבור נופשים בבטומי. המיקום במרחק שני צעדים מהים, מבתי קפה ומכל האטרקציות הופך את הסטודיו לאטרקטיבי להשכרה לטווח קצר.
-
צעירים מקצועיים או סטודנטים: פתרון מצוין לחיים עירוניים נוחים עם מגוון שירותים מלא, המשחרר אתכם מדאגות יומיומיות.
📍 בנוסף
שדרת הגיבורים — העורק התיירותי הראשי, שבו כל התשתיות (תחבורה, חנויות, מסעדות, טיילת) נמצאות במרחק הליכה. הניהול המקצועי של חברת "River Rock" מבטיח את שמירת הנכס ואת רווחיותו. הדירה זמינה בקומות שונות.
רוצים לדעת את העלות המדויקת ולחשב את הרווח הפוטנציאלי?
📞 לקבלת תוכנית פיננסית מפורטת, השאר בקשה באתר או שלח לנו הודעה ב-WhatsApp.













