סטודיו קומפקטי ליד הים
🏡 מידע כללי:
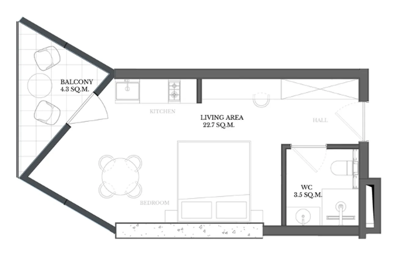
דירת סטודיו מודרנית בשטח כולל של 30.5 מ"ר (שטח מגורים — 26.2 מ"ר). השטח כולל מרפסת 4.3 מ"ר. אופציה אידיאלית למגורים ולהשקעה במתחם החדש VR יער חוף ב שקויטלי, באטומי.
📐 תכנון ויתרונות:
חלל פתוח ופרקטי מאחד את הסלון ואת אזור המטבח (22.7 מ"ר). חדר הרחצה משולב. הדירה מתאפיינת בתכנון מחושב, שבו כל מטר מנוצל ביעילות. מרפסת 4.3 מ"ר מהווה תוספת נעימה לקפה של הבוקר או למנוחה בערב. ✅ יתרונות: פתרון מוכן לכניסה, עיצוב לקוני, שטח אופטימלי לשירות.
👨👩👧 מתאים ל:
-
מטיילים בודדים וזוגות: אפשרות נהדרת וחסכונית לחופשה בחוף הים. כל הדרוש לחיים מרוכז במקום אחד, מה שמבטיח נוחות מרבית.
-
משקיעים עם החזר מהיר: הפורמט הנזיל והמבוקש ביותר בשוק השכירות הנופש. סף כניסה נמוך, ביקוש גבוה והוצאות תחזוקה מינימליות מבטיחים החזר מהיר על ההשקעה.
-
הצעד הראשון בשוק הנדל"ן: הזדמנות מצוינת לרכוש את הנכס הראשון שלכם באזור נופש מבטיח במחיר אטרקטיבי.
📍 בנוסף:
הדירה ממוקמת במתחם מודרני הנמצא בבנייה. המיקום בשקוויטלי מאפשר גישה ישירה לכל היתרונות העיקריים של אתר הנופש: חוף חולי, טיילת, בתי קפה, מסעדות וכל התשתית הדרושה לנופשים.
רוצים לדעת את העלות המדויקת והתנאים?
קבלו חישוב מלא של האטרקטיביות ההשקעתית ותוכנית פיננסית על ידי מילוי טופס הבקשה באתר או שליחת הודעה ב-WhatsApp לקבלת תשובה מיידית.













