מרחב לחיים ולהשקעות
🏡 מידע כללי
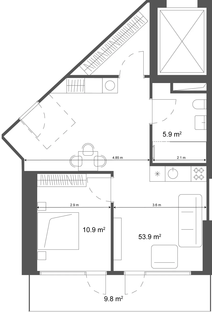
מרווח דירת חדר אחד ברמת נוחות גבוהה במתחם יוקרתי רמדה רזידנסס ביי ווינדהם, הממוקם על העורק הראשי של באטומי — שדרת הגיבורים. השטח הכולל הוא 63.70 מ"ר, כולל מרפסת 9.8 מ"ר. אזור המגורים מרשים בגודלו — 53.9 מ"ר.
📐 פריסה ויתרונות
הדירה בולטת בשטחה הלא סטנדרטי לדירת חדר אחד. התכנון כולל חדר שינה נפרד (10.9 מ"ר) ו אזור מטבח-סלון מרווח מאוד. ✅ מרפסת גדולה (9.8 מ"ר) משלים באופן אורגני את החלל הפנימי, ויוצר מרחב אידיאלי למנוחה. חדר הרחצה (5.9 מ"ר) מאפשר למקם בנוחות את כל האביזרים הסניטריים הדרושים. הצעה זו מיועדת לאלה המעריכים את החופש והמרחב של דירת שני חדרים בדירת חדר אחד.
👨👩👧 מתאים ל
-
לחיים בנוחות מיוחדת: אפשרות אידיאלית לזוגות או למשפחות קטנות, שבהן חשוב שיהיה חדר שינה נפרד מבלי לוותר על שטח הסלון למנוחה ולאירוח אורחים.
-
לשכירות פרימיום: שטח ותכנון כזה מושכים תיירים או תושבים זרים תובעניים, המחפשים לא רק דיור, אלא דירות נוחות עם שם במרכז העניינים.
-
למשקיעים אסטרטגיים: השילוב הייחודי בין פורמט דירת חדר אחד לשטח הקרוב לדירת שני חדרים, הופך את הנכס לנזיל ביותר. הניהול על ידי מותג עולמי והמיקום מבטיחים ביקוש יציב ותשואה גבוהה מהשכרה.
📍 בנוסף
מיקום בשדרת הגיבורים פירושו חיים במרחק פסיעה מהים, פארקים, מסעדות וכל התשתית התיירותית של באטומי. המתחם מציע שירות "סגור ונסע" מחברת הניהול "River Rock", המבטיח חוסר דאגות מוחלט לבעלים. הדירה זמינה בקומות שונות.
מעוניין בהצעה בלעדית עם תוכנית עסקית מוכנה?
📞 קבלו חישוב מפורט של ההכנסה הפוטנציאלית והתנאים על ידי מילוי טופס הבקשה באתר או שליחת הודעה ב-WhatsApp.













