סטודיו ייחודי עם מרפסת-סלון
🏡 מידע כללי:
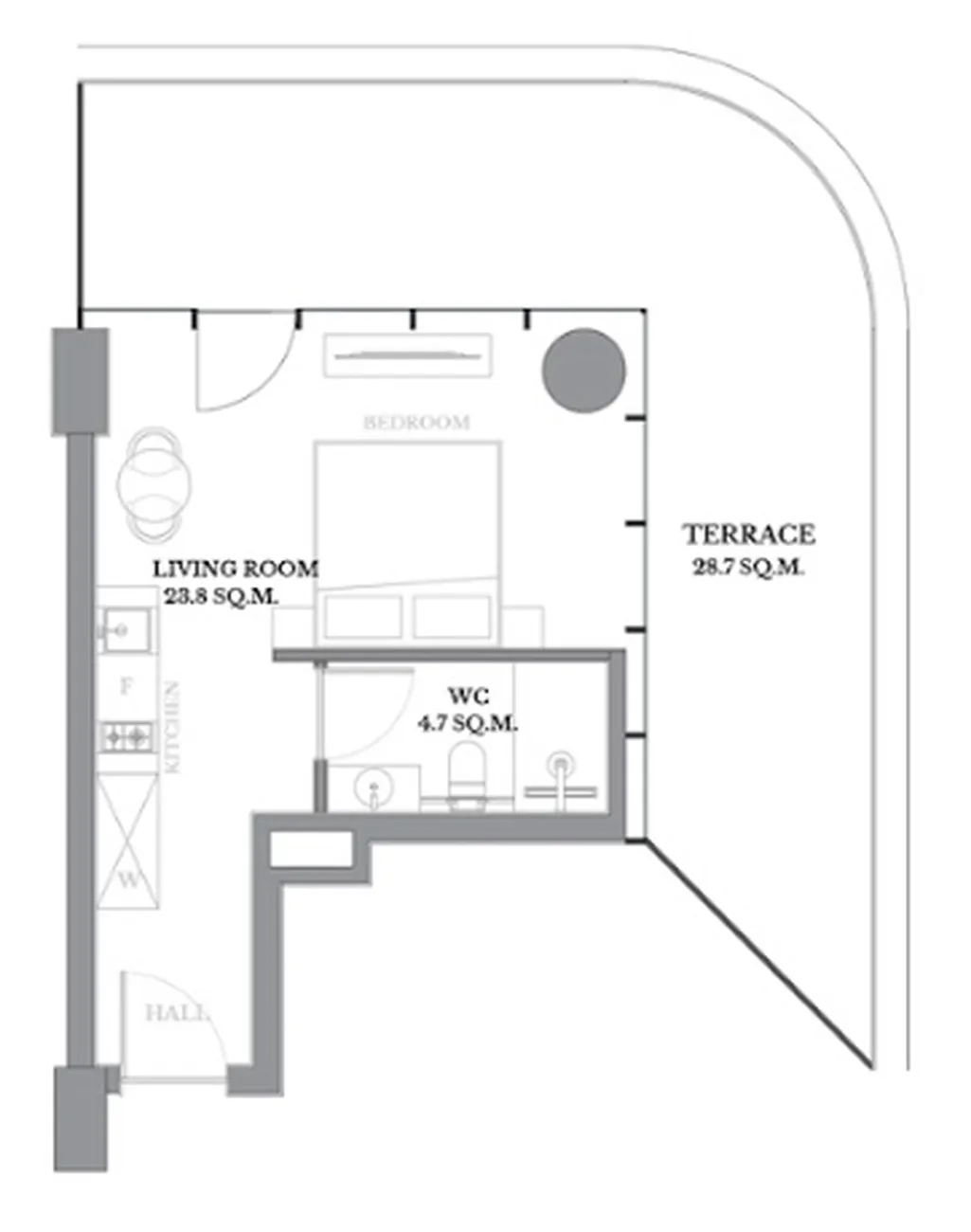
סטודיו אקסקלוסיבי בשטח של 57.20 מ"ר במתחם אקולוגי חדש VR יער חוף. ממוקם באזור השמורה של שקוואטלי (באטומי), שבו חוף חולי זהוב פוגש יער אורנים עתיק — פורמט אידיאלי לחיים בטבע ולהשקעות רווחיות.
📐 תכנון ויתרונות:
אזור מגורים מרווח (23.8 מ"ר) עם תכנון פתוח יוצר חלל מואר ונעים. ייחודיות הנכס — מרפסת ענקית (28.7 מ"ר), הגדולה יותר מהחדר עצמו, והופכת לסלון השני שלכם תחת כיפת השמיים. כאן תוכלו להקים אזור מנוחה, חדר אוכל קיצי או גינה עם נוף ליער. חדר רחצה מודרני (4.7 מ"ר) מוכן לגימור סופי. הצעה נדירה, שבה המרחב הפתוח הפרטי הוא היתרון העיקרי.
👨👩👧 מתאים ל:
-
משקיעים: נכס עם מאפיין בולט כזה (מרפסת גדולה יותר מהחדר) הוא בעל נזילות גבוהה ואטרקטיביות להשכרה. הפיתוח הפעיל של שקוטילי כאתר נופש אקולוגי יוקרתי והסביבה הטבעית הייחודית מבטיחים ביקוש יציב ותשואה גבוהה.
-
חובבי השלווה והטבע: הפתרון המושלם למפלט אישי. האפשרות לבלות זמן במרפסת פרטית מרווחת מוקפת ביער יוצרת חוויה ייחודית של מנוחה ורגיעה הרחק מההמולה העירונית.
📍 בנוסף:
המתחם ממוקם באזור נופש מבטיח עם תשתית המתפתחת במהירות. במרחק הליכה קצר יוקמו בתי קפה, מסעדות וחנויות. שטח הפארק הלאומי "שקווטילי" ואחד מחופי החול הטובים ביותר בגאורגיה מתחילים ממש ליד המתחם.
מוכנים לדון בהצעה ייחודית זו?
📲 כדי לקבל מודל פיננסי מלא, תוכניות מפורטות ותנאים מיוחדים מהיזם, השאירו בקשה באתר או כתבו לנו ב-WhatsApp. אנו נכין עבורכם מצגת מקוונת מפורטת של הפרויקט.













