A spacious residence with hotel services
🏡 General information
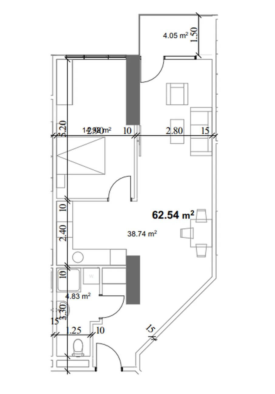
Modern 1-bedroom flat of 62.54 sq.m. including a 4.05 sq.m. balcony. Located in an exclusive project ELT OXY Residence on New Boulevard in Batumi - a unique life-hotel complex created in partnership with the international Barceló Hotels chain.
📐 Layout and benefits
The flat offers a rational layout: a spacious living room (38.74 m²) with a kitchen area and an isolated room (14.92 m²), ideal for a bedroom or study. The bathroom is separate (4.83 m²) and the balcony adds a cosy space for relaxation. Panoramic windows fill the interior with light, creating an airy atmosphere of modern cosiness.
👨👩👧 Suitable for
-
InvestorsThe management of Occidental Hotel guarantees stable income and the life-hotel format ensures high liquidity and demand.
-
Young Professionals: room privacy, modern finishes and access to all the services of a 4-star hotel.
-
Tourists (when renting): location in the heart of the resort area, steps away from the sea, restaurants and seafront.
📍 Additionally
Near developed infrastructure: shops, transport, cafes. The flat is available on different floors - you can choose the option with the best view.
✨ Be the first to know the terms and conditions!
For detailed information and a personalised offer, leave an application form on the website or write to WhatsApp. Your life in the OXY Residence format starts here!













