Appartement confortable avec chambre séparée et balcon en Géorgie
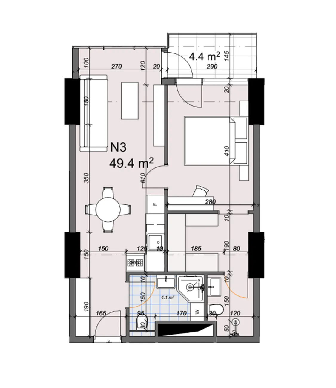
Découvrez un mode de vie urbain et réfléchi - un appartement d'une superficie totale de 53.8 м² compact balcon 4.4 m²Idéal pour une vie confortable ou un revenu d'investissement stable. L'agencement fonctionnel comprend une chambre à coucher séparée et une cuisine-salon spacieuse, créant ainsi un format de vie confortable sans compromis sur le confort et la praticité.
Il ne s'agit pas d'un simple appartement, mais d'une solution complète pour ceux qui recherchent une propriété liquide dans le parc immobilier moderne de la Géorgie.
Caractéristiques principales :
Chambre à coucher séparée et salle de séjour complète :
L'agencement sépare clairement les espaces privés des espaces communs. La chambre à coucher offre calme et confort, tandis que la cuisine-salon devient l'espace central pour se détendre et recevoir des invités.
Balcon de 4,4 m² :
Un espace extérieur supplémentaire pour le café du matin, le stockage ou un coin salon ajoute de la valeur à la propriété.
La surface optimale est de 49,4 m² :
L'un des formats les plus populaires sur le marché - pratique pour un couple et très liquide pour la location.
Zonage rationnel :
Un minimum de couloirs, une disposition logique de la salle de bains et de la cuisine, des passages pratiques entre les pièces.
Idéal pour :
Couples ou propriétaire unique :
Aménagement confortable avec une chambre séparée et beaucoup d'espace pour la vie de tous les jours.
Investisseurs :
Le format 1+1 fait l'objet d'une demande stable sur le marché de la location à long terme et à court terme en Géorgie.
Les primo-accédants à la propriété :
Le métrage pratique, la fonctionnalité et la grande liquidité font de cette propriété un choix sûr.
Il s'agit d'une combinaison équilibrée de confort, de fonctionnalité et d'attrait pour l'investissement. Un appartement facile à louer, pratique à utiliser et qui conserve sa valeur au fil du temps.
Contactez-nous pour plus d'informations et pour organiser une visite de cette propriété.













