Appartement avec loggia en Next Magnolia
Le projet Next Magnolia sur le New Boulevard Batumi présente un appartement unique combinant un plan ouvert moderne avec un espace fonctionnel privé. C'est un espace idéal pour vivre, travailler et se détendre au bord de la mer.
🏙️ Concept d'espace
-
Projet : NEXT Magnolia
-
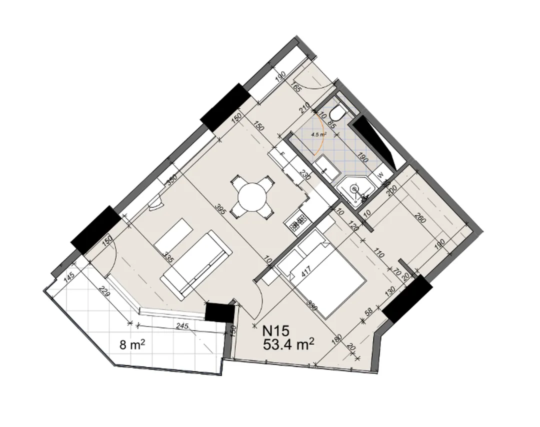
Format : Appartement avec salon ouvert et pièce isolée
-
Surface totale : 61,40 м²
-
Balcon : 8 м²
-
Lieu de travail : Batumi, Nouveau Boulevard
✨ Une planification intelligente
-
Espace principal: salon-cuisine-salle à manger ouvert avec accès à une loggia de 8 m².
-
Pièce isolée : peut servir de chambre à coucher, de bureau ou de chambre d'enfant
-
Deux sorties vers l'air frais : loggia et balcon spacieux
-
Vestiaire/panier supplémentaire pour un stockage durable
🌟 Avantages du format
-
Flexibilité d'utilisation : Espace ouvert pour vivre et recevoir + pièce privée pour travailler ou se détendre
-
Un zonage efficace : Division claire des zones publiques et privées
-
Lumière naturelle : L'agencement permet d'éclairer toutes les zones fonctionnelles
🎯 Idéal pour :
-
Professionnels du format à distance : Étude + salon avec vue sur Batumi
-
Les couples qui accordent de l'importance à l'espace personnel : Vivre ensemble avec la possibilité d'avoir une vie privée
-
Investisseurs : Le format polyvalent est intéressant pour les locations à long terme
-
Connaisseurs de l'architecture moderne : Lignes épurées, praticité, légèreté
📍 Un lieu en perspective
New Batumi Boulevard est un quartier prestigieux doté d'une infrastructure développée :
-
3 minutes au bord de la mer
-
Cafés, restaurants, boutiques à distance de marche
-
Zone piétonne pour la marche
-
Excellente accessibilité aux transports
💰 Potentiel d'investissement
-
Forte demande sur la location d'appartements de qualité dans le centre de Batumi
-
Polyvalence des formats attire différentes catégories de locataires
-
Croissance de la valeur une propriété dans un quartier prestigieux
-
Une rentabilité stable dans le cadre d'un bail à long terme
📲 En savoir plus sur les possibilités
Vous souhaitez calculer le rendement ou obtenir un plan détaillé de l'appartement ? Faites-nous part de votre demande et nous vous fournirons des informations complètes sur l'objet, les conditions d'achat et les perspectives du quartier.













