Studio de style loft en bord de mer
🎯 Informations générales :
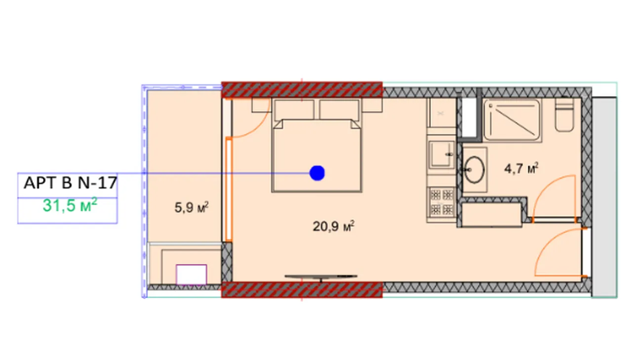
Studio moderne 31,5 м² dans un complexe d'appartements OKTO Art House. Un espace avec de hauts plafonds, des vitrages panoramiques et des finitions design - une solution prête à l'emploi pour vivre, créer et investir au bord de la mer.
📐 Présentation et avantages :
- Zone principale 20,9 м² combine le salon, la chambre à coucher et la cuisine-salle à manger, ce qui vous permet d'expérimenter avec le design.
- Salle de bain séparée 4,7 м² avec des finitions de qualité et une terrasse 5,9 м² - le coin salon idéal avec vue.
- De grandes fenêtres allant du sol au plafond inondent l'espace de lumière, créant un effet spacieux et aéré.
👨👩👧 Convient pour :
✅ Jeunes professionnels - un espace pour travailler et vivre dans un environnement artistique créatif.
✅ Touristes - à distance de marche de la mer, des cafés et des divertissements.
✅ Investisseurs - la forte demande locative, le caractère unique du projet et le potentiel de croissance de la valeur.
📍 Extras :
Il est entouré de cafés, de boutiques, d'un front de mer et de centres de transport. Le complexe se caractérise par une infrastructure bien pensée et un design moderne.
💬 Vous souhaitez en savoir plus ?
Laissez une demande sur le site web ou écrivez à WhatsApp - nous vous fournirons des informations complètes sur l'appartement, les conditions d'achat et les calculs financiers !













