Studio avec grande terrasse dans la forêt
🏡 Informations générales :
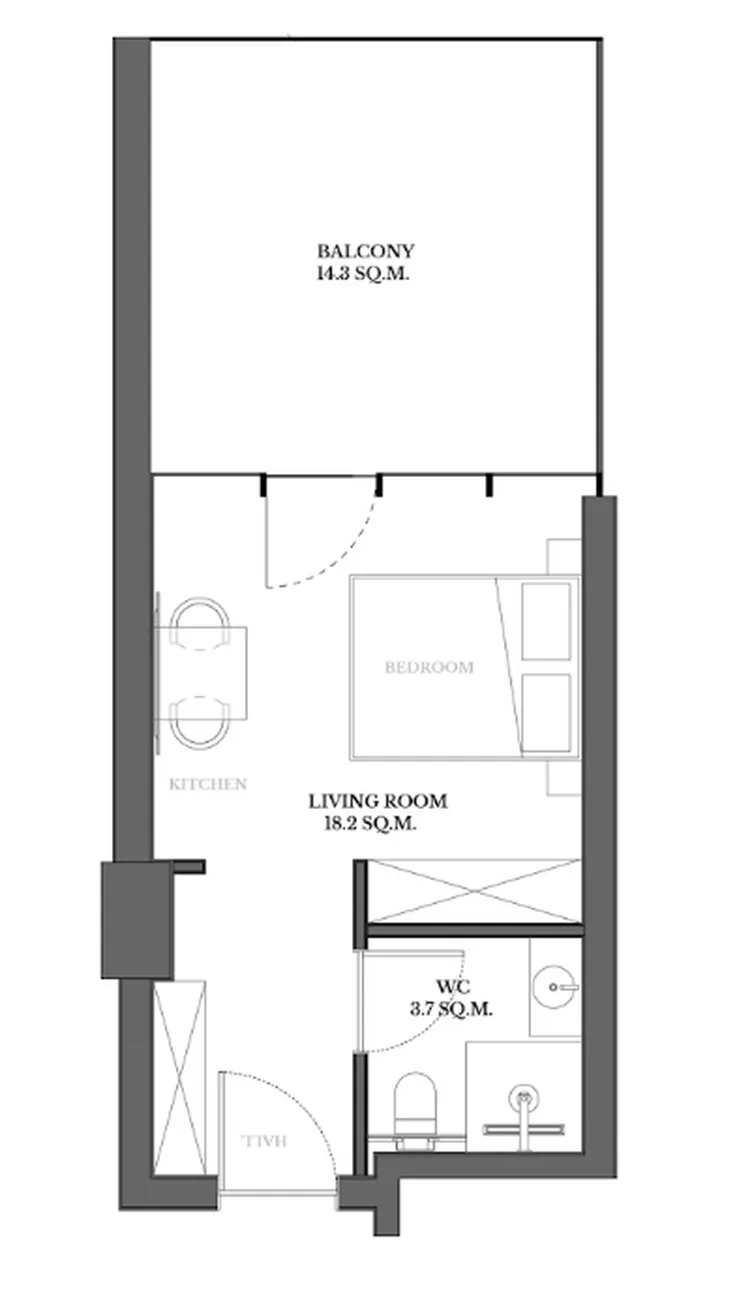
Studio moderne de 36,20 m² dans un nouveau complexe de vacances VR Forest Beach. Situé dans la zone écologiquement propre de Shekvetili (Batumi), où une forêt de pins rencontre une plage de sable, créant des conditions idéales pour les vacances et les investissements.
📐 Présentation et avantages :
L'espace de vie pratique (18.20 m²) combine le salon, la chambre et la cuisine pour former un espace confortable. La caractéristique principale est l'immense balcon-terrasse (14,30 m²), qui a la taille d'une pièce et devient votre propre espace de vie extérieur privé. La salle de bains moderne (3,70 m²) est prête à être finalisée. Le principal avantage est le rapport unique entre la surface habitable et la grande terrasse, ce qui rend l'appartement particulièrement attrayant.
👨👩👧 Convient pour :
-
Investisseurs : Un studio avec une grande terrasse dans un complexe de vacances au bord de la forêt et de la mer est un bien très liquide. La forte demande locative saisonnière, le développement des infrastructures de Shekvetili et le prix d'entrée abordable garantissent un excellent retour sur investissement.
-
Les amoureux de la nature et des vacances reposantes : Une option idéale pour une retraite personnelle. Le silence, l'air des pins, la proximité de la plage et une grande terrasse unique créent une atmosphère d'unité avec la nature.
📍 Extras :
Le complexe est situé dans une zone où les infrastructures se développent activement. Vous trouverez des magasins, des cafés et des lieux de divertissement à quelques minutes de marche. Une plage de sable propre et le célèbre parc national "Shekvetili" feront partie de votre repos quotidien.
Vous voulez connaître les conditions et calculer le rendement ?
📲 Pour obtenir le plan financier détaillé, les plans et les conditions spéciales du constructeur, laissez une demande sur le site web ou envoyez-nous un message sur WhatsApp. Nous vous enverrons une présentation complète en ligne !













