Lakonisches Bergstudio
Dieses Grundstück in NEXT Gardens ist die Quintessenz der Zweckmäßigkeit. Ein Atelier für diejenigen, die Immobilien als Mittel zum Leben und nicht als Selbstzweck betrachten. Hier gibt es nichts Überflüssiges: nur ein gut durchdachtes funktionales Minimum im Inneren und den größten Schatz von Gonio - den ungehinderten Blick auf die Berge von Ihrer privaten Loggia aus.
🏔️ Das Wesentliche des Vorschlags
-
Projekt: NEXT Gärten
-
Art: Lakonisches Studio mit Blick auf die Loggia
-
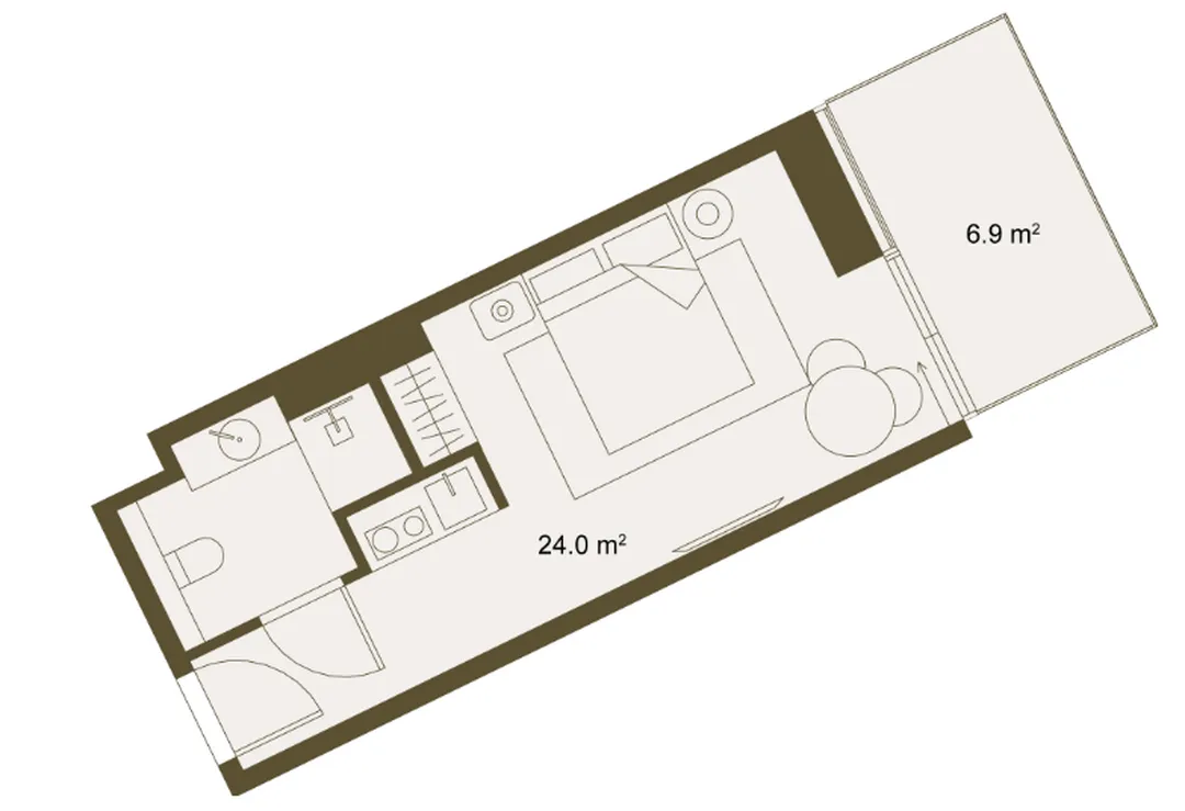
Bruttogeschossfläche: ab 30,2 m²
-
Loggia: 6,2 m² (geschützte Aussichtsplattform)
-
Nachbarschaft: Gonio, ein Heiligtum der Ruhe und der sauberen Luft
-
Block: B
-
Hauptmerkmal: Absolut funktioneller Wohnraum und eine vollwertige Loggia mit zentralem Bergblick.
📏 Grundsatz der angemessenen Hinlänglichkeit (24 m² + 6,2 m²)
-
Funktionsmodul (24 m²): Ein genau kalkulierter Raum, der nach dem Prinzip "nichts extra" gebaut ist. Die integrierte Küchenzeile, die kompakte Sanitäreinrichtung, der Schlaf- und der Ruhebereich sind zu einer harmonischen Komposition zusammengefasst. Helle Oberflächen und intelligente Beleuchtung schaffen ein Gefühl von Sauberkeit und Ordnung.
-
Loggia-Rahmen (6,2 m²): Kein Balkon, sondern eine Loggia - ein auf drei Seiten geschützter Raum, der das ganze Jahr über genutzt werden kann. Sie ist Ihre "Kunstgalerie" mit einem einzigen, aber unbezahlbaren Exponat - einem lebendigen, sich verändernden Bergpanorama. Ein Ort für das morgendliche Ritual und die abendliche Besinnung.
🗻 Eine Philosophie des bewussten Minimalismus
Dieses Studio ist für diejenigen gedacht, die es verstehen, sich auf das Wesentliche zu konzentrieren. Drinnen alles, was Sie zur Revitalisierung brauchen. Draußen alles, was Sie für Ihre Inspiration brauchen. Der Raum befreit Sie von der Notwendigkeit, zusätzliche Meter aufrechtzuerhalten, und ermöglicht es Ihnen, sich auf das Wesentliche zu konzentrieren, das es bedeutet, in Gonio zu sein: eins zu sein mit der natürlichen Kraft und der Geschichte.
💰 Klarheit der Investitionen
-
Minimale Investition, maximale Aussicht: Die erschwinglichste Art, eine Immobilie in NEXT Gardens zu besitzen, ohne auf den entscheidenden Vorteil des Bergblicks verzichten zu müssen.
-
Einwandfreie Wirtschaft: Der niedrige Kaufpreis, die minimalen Steuern und Nebenkosten sorgen für eine hohe Rendite bei der Vermietung und minimale Kosten bei der Eigennutzung.
-
Stabile Nachfrage: Ein klassisches, bewährtes Format, das von Alleinreisenden, Minimalisten und Investoren, die ein "Arbeitspferd" für die Vermietung suchen, ständig nachgefragt wird.
-
Schnelle Liquidität: Aufgrund des optimalen Preises und der Nachfrage nach dem Format verkauft sich ein solches Studio schneller als analoge Modelle mit einer größeren, aber unorganisierten Fläche.
📍 Der Ort, an dem die Erfahrung ihren Ursprung hat
-
⛰ Berge als Selbstverständlichkeit: Die unmittelbare Nähe und die Aussicht vermitteln den Eindruck, sich in einem Nationalpark zu befinden.
-
🏰 Die Geschichte ist in der Tonlage: 5 Minuten Fußweg zur Festung Gonio.
-
🌊 Das Meer ist zum Greifen nah: 15-20 Minuten gemütlicher Spaziergang.
-
🚌 Verkehrsanbindung: Günstige Logistik nach Batumi und zur türkischen Grenze.
Das lakonische Mountain Studio ist ein reines Destillat der Idee eines Landurlaubs. Es ist die Wahl derjenigen, die Zeit und Geld schätzen und es vorziehen, es nicht in die Instandhaltung von zusätzlichem Raum zu investieren, sondern in ihre eigenen Erfahrungen und die Freiheit, die der Blick aus dem Fenster bietet.













