Spazioso attico con un'enorme terrazza
🏡 Informazioni generali
Esclusivo attico trilocale con una superficie totale di 202,85 m², di cui 108,62 m² occupati da un'ampia terrazza, nel moderno complesso residenziale Guru Subtropical. Posizione - il prestigioso villaggio turistico di Kvariati, dove le montagne scendono verso il Mar Nero, creando un microclima subtropicale unico a soli 15 minuti dal centro di Batumi. Disponibile con finiture "white frame" o "chiavi in mano" per adattarsi a qualsiasi scenario di utilizzo.
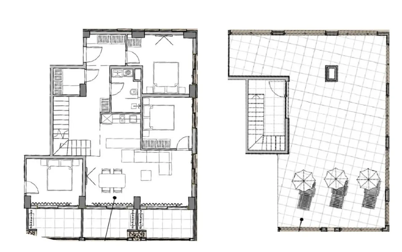
📐 Layout e vantaggi
L'attico occupa due livelli: uno spazio interno di 94,23 m² con tre camere da letto isolate e una spaziosa cucina-soggiorno, e un'enorme terrazza di 108,62 m² all'ultimo piano. Si tratta di una vera e propria residenza aggiuntiva a cielo aperto: un salotto estivo, una zona barbecue con tavolo da pranzo per 10-12 persone, sedie a sdraio, una vasca idromassaggio o addirittura un piccolo giardino con vista sul mare. I bagni e le zone spogliatoio separate garantiscono il massimo comfort per una famiglia numerosa, mentre le finestre panoramiche riempiono lo spazio di luce. L'altezza dei soffitti e la posizione al piano superiore creano una sensazione di completa privacy e ariosità.
👨👩👧 Adatto per
*️⃣ Famiglie con bambini - Tre camere da letto isolate e un'enorme terrazza offrono spazio per il relax e i giochi all'aperto. Nelle vicinanze si trovano asili e scuole e l'aria pulita di Kvariati è ideale per la vita familiare.
*️⃣ Turisti - attico con terrazza - un'opzione premium per l'affitto da parte di un grande gruppo o di diverse famiglie. La vicinanza a una spiaggia dalle acque limpide, a un centro immersioni, a caffè e ristoranti, unita a un formato esclusivo, garantisce la massima richiesta e un elevato numero di affitti stagionali.
*️⃣ Investitori - Un attico con tre camere da letto e un'enorme terrazza: il formato più raro e liquido in riva al mare. Un rendimento locativo previsto fino a 14%, la possibilità di acquistare a rate fino a 36 mesi e la collaborazione con l'operatore internazionale IHG fanno di questa proprietà un investimento premium con il massimo potenziale di crescita.
📍 Inoltre
A pochi passi si trovano supermercati, fermate dei mezzi di trasporto e la pittoresca passeggiata di Kvariati. Il complesso dispone di una piscina all'aperto, un centro fitness, bar, aree per bambini e sicurezza 24 ore su 24. La navetta per la spiaggia e le infrastrutture ben studiate creano le condizioni ideali per una vita e uno svago di alto livello. La navetta per la spiaggia e le infrastrutture ben studiate creano le condizioni ideali per vivere e divertirsi ai massimi livelli.
Per conoscere il prezzo esatto, le finiture disponibili e le condizioni di acquisto, basta lasciare una richiesta sul sito o scriverci su WhatsApp. Saremo lieti di aiutarvi nella scelta!













