Светлая лаконичная студия 🏙️
🏡 Informazioni generali
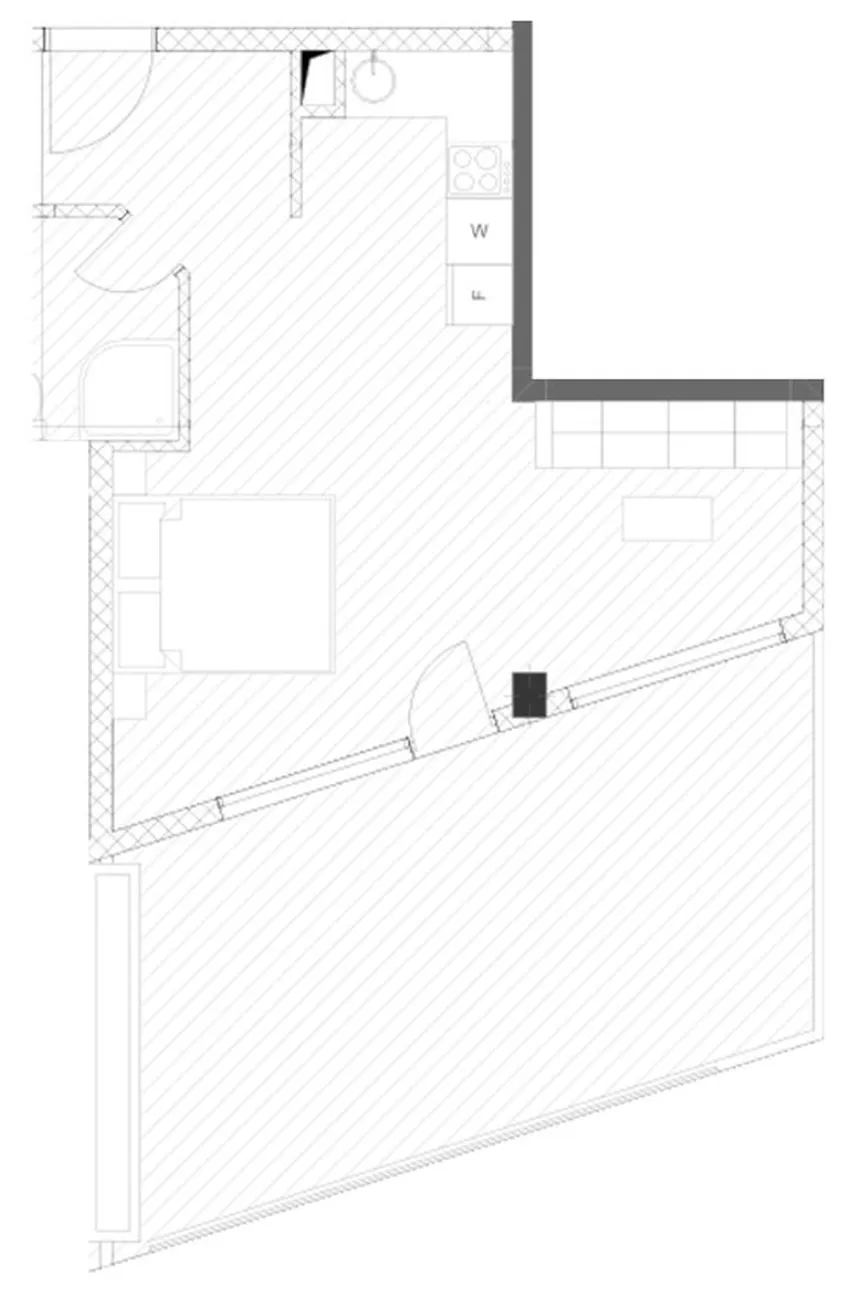
Studio luminoso con una superficie totale di 56.5 м² (residenziale) 33.2 м²) в современном 12-этажном жилом комплексе Punto d'argento dal costruttore Sviluppo Urbani (основан в 2019 году, более 15 лет опыта в строительстве). Комплекс расположен в тихом районе della città vecchia di Batumi a ul. Alexander Sulaberidze, 86 — всего в 15 минутах пешком от пляжа и в окружении малоэтажной застройки, что обеспечивает спокойную атмосферу. Квартира доступна в quattro varianti scelta tra "cornice nera", "cornice bianca", "ristrutturazione completa" o completamente "chiavi in mano. Проект включает два 12-этажных корпуса на 170 квартир, строительство по монолитно-каркасной технологии, сдача — 2026.
📐 Layout e vantaggi
Перед вами — просторное студийное пространство, которое легко зонировать на спальную и гостиную зоны благодаря площади 56.5 м². Отдельный санузел, а также balcone, с которого открываются панорамные виды на море или горы. Высокие потолки (2.95 м) и большие панорамные окна наполняют квартиру светом. В доме предусмотрены подземный паркинг, видеонаблюдение 24/7, а на крыше — эксплуатируемая лаунж-зона с зонами для отдыха и спорта. Фасад выполнен в природных песочных и оливковых тонах, гармонирующих с ландшафтом Аджарии.
👨👩👧 Adatto per
🔹 Famiglie con bambini — студия такой площади — отличный старт для молодой семьи, можно комфортно разместить детскую зону. Район тихий и безопасный, рядом школы и детские сады. До парка 6 Мая — 10 минут пешком.
🔹 Turisti — до моря и Батумского бульвара — 15 минут пешком. Вокруг — кафе, рестораны, супермаркеты, аптеки. Студия востребована у туристов, а возможность выбора отделки «под ключ» позволяет сдавать её в аренду сразу после получения ключей.
🔹 Investitori — Старый город — это ликвидная локация с ежегодным ростом цен 10–15%. Вход на стадии строительства даёт скидку 20–25% от рыночной цены. Ожидаемая арендная доходность — 8–12% годовых. Наличие нескольких форматов отделки позволяет гибко подходить к бюджету.
📍 Inoltre
Инфраструктура района развита: супермаркеты, аптеки, кафе, рестораны, остановки общественного транспорта — всё в шаговой доступности. Внутренний двор комплекса будет благоустроен детской площадкой и прогулочными зонами. Этаж уточняется при бронировании.
📲 Хотите узнать точную стоимость и условия покупки этой студии? Просто оставьте заявку на сайте или напишите нам в WhatsApp — мы пришлём все детали и поможем забронировать этот вариант в Silver Point.













