Pěkná ložnice se dvěma ložnicemi a velkým balkonem
🏡 Obecné informace:
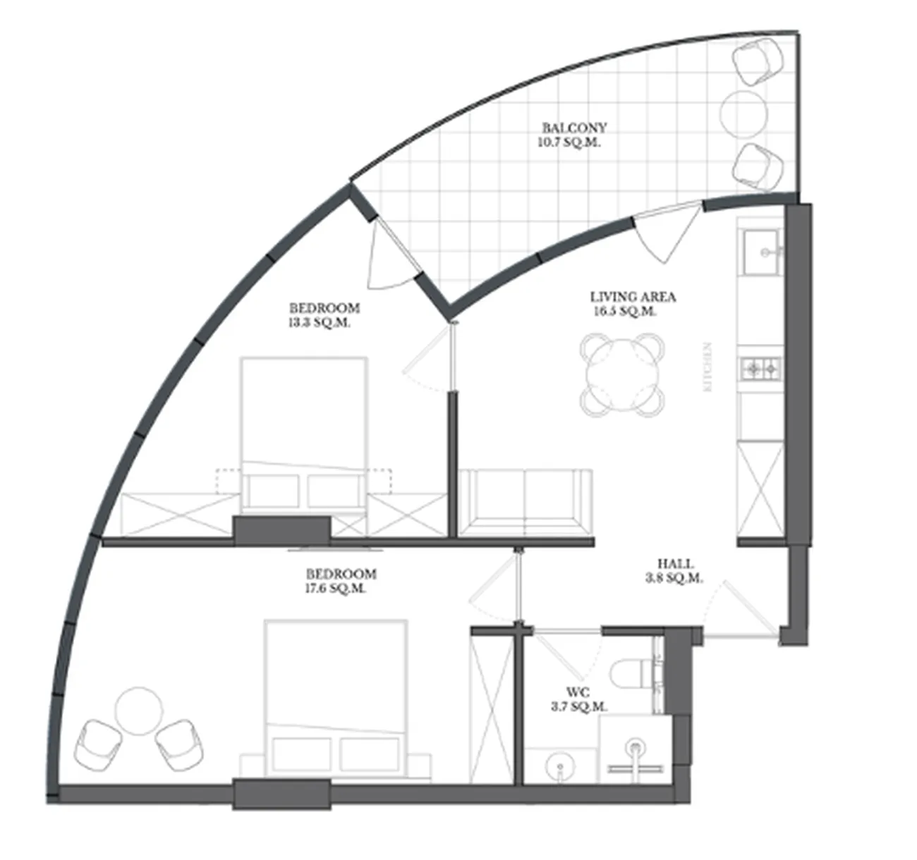
Vyvážený byt se 2 ložnicemi o celkové ploše 65.6 м² (54,9 m² obytné plochy). Jeho hlavní předností je prostorný balkon 10,7 m²Nemovitost se nachází v novém komplexu. Nachází se v novém komplexu VR Forest Beach в Shekvetili, Batumi.
📐 Rozložení a výhody:
Chytré uspořádání zahrnuje dvě samostatné ložnice (17,6 m² a 13,3 m²) a útulný obývací pokoj. 16.5 м². Koupelna je kombinovaná. Velký balkon 10,7 m² slouží jako rozšíření obytného prostoru, lze ji zařídit jako letní jídelnu nebo odpočinkovou zónu. ✅ Výhody: soukromí místností, úspora celkové podlahové plochy díky absenci dlouhých chodeb, výrazné zvětšení užitného prostoru díky balkonu.
👨👩👧 Vhodné pro:
-
Malá rodina: Dvě oddělené ložnice poskytují soukromý prostor pro rodiče a děti, zatímco velký balkon se stává bezpečným a pohodlným místem pro venkovní rodinná setkání.
-
Sezónní pronájmy: Klasický a oblíbený formát "dvoukabinky" s významnou výhodou v podobě prostorného balkonu, který zvyšuje jeho atraktivitu a hodnotu v očích rekreantů.
-
Spolehlivé investice: Nemovitost s optimálním poměrem ceny a potenciálu příjmů. Stabilní poptávka po jednopokojových bytech u moře v kombinaci s jedinečnou charakteristikou (velký balkon) zajišťuje likviditu a dobrou návratnost investice.
📍 Příplatky:
Byt se nachází v moderním komplexu ve výstavbě. Sousedství Shekvetili nabízí rozvinutou infrastrukturu pro bydlení a rekreaci: písečná plážPromenáda, kavárny, obchody a zábavní podniky jsou na dosah ruky.
Chcete se dozvědět více o výhodách tohoto pozemku?
Pro úplné informace o nákladech, podmínkách nákupu a výpočtu investičního odvolání zanechte žádost na webových stránkách nebo nám napište na WhatsApp.













