Prostorná ložnice se dvěma balkony
🏡 Obecné informace:
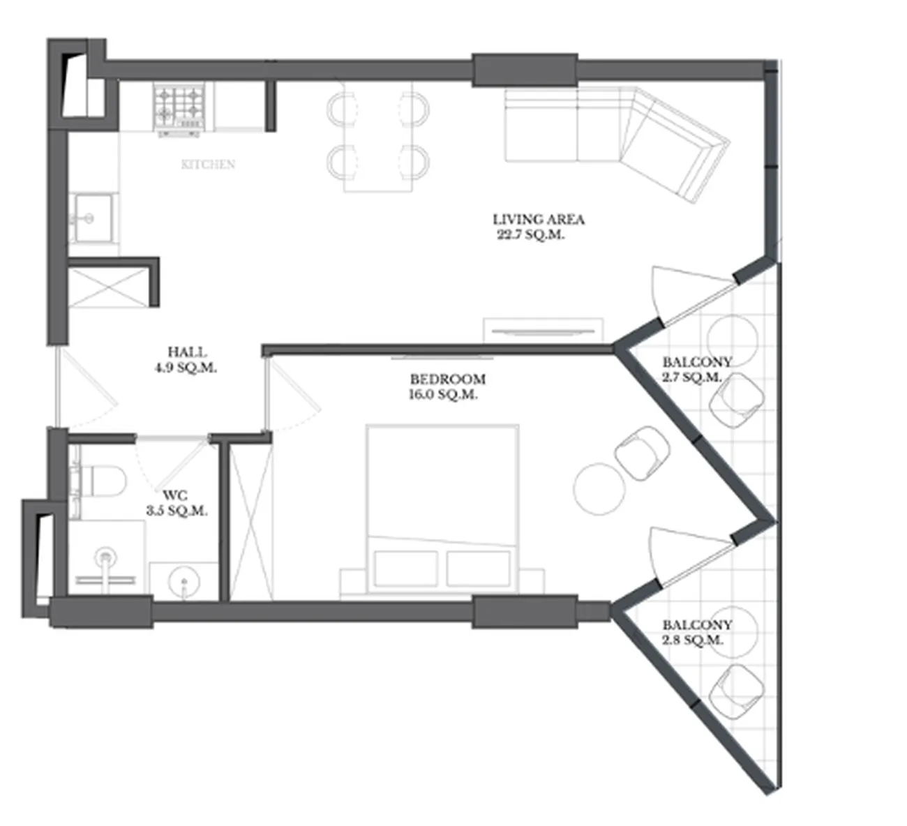
Úspěšný byt s 1 ložnicí o celkové ploše 52.6 м² (47,1 m² obytné plochy). Jeho zvláštností je dva samostatné balkony o celkové ploše 5,5 m². Nemovitost se nachází v novém komplexu VR Forest Beach v oblasti letoviska Shekvetili, Batumi.
📐 Rozložení a výhody:
Praktické uspořádání zahrnuje izolovaná ložnice (16,0 m²) a prostorný obývací pokoj s jídelnou 22.7 м². Koupelna je kombinovaná. Dostupnost dva balkony (2,8 m² a 2,7 m²) - vzácná výhoda, která umožňuje oddělit prostor pro odpočinek a například skladování nebo ranní přestávky na kávu. ✅ Hlavní výhody: soukromá ložnice, efektivní zónování, větší světelný a vzdušný prostor.
👨👩👧 Vhodné pro:
-
Páry nebo malé rodiny s jedním dítětem: Izolovaná ložnice poskytuje soukromí rodičům a dva balkony umožňují pohodlné bydlení jen pár kroků od moře.
-
Pronájmy: Tento formát s odděleným pokojem často upřednostňují turisté, kteří hledají více útulnosti než studio. Dva balkony jsou vážnou výhodou pro zvýšení atraktivity a ceny pronájmu.
-
Investoři: Optimální rovnováha mezi cenou a likviditou. Byt s izolovanou ložnicí a jedinečnou možností (dva balkony) je velmi žádaný, poskytuje stabilní výnosnost a rychlou návratnost.
📍 Příplatky:
Byt se nachází v moderním komplexu ve výstavbě. Okolí Shekvetili nabízí veškerou potřebnou infrastrukturu letoviska: písečná plážV centru se nachází promenáda, kavárny, restaurace a obchody.
Chcete znát podrobnosti?
Pro úplné informace o uspořádání, přesné náklady a výpočet investičního odvolání zanechte žádost na webových stránkách nebo nám napište zprávu na WhatsApp.













