Kompaktní studio
🎯 Obecné informace:
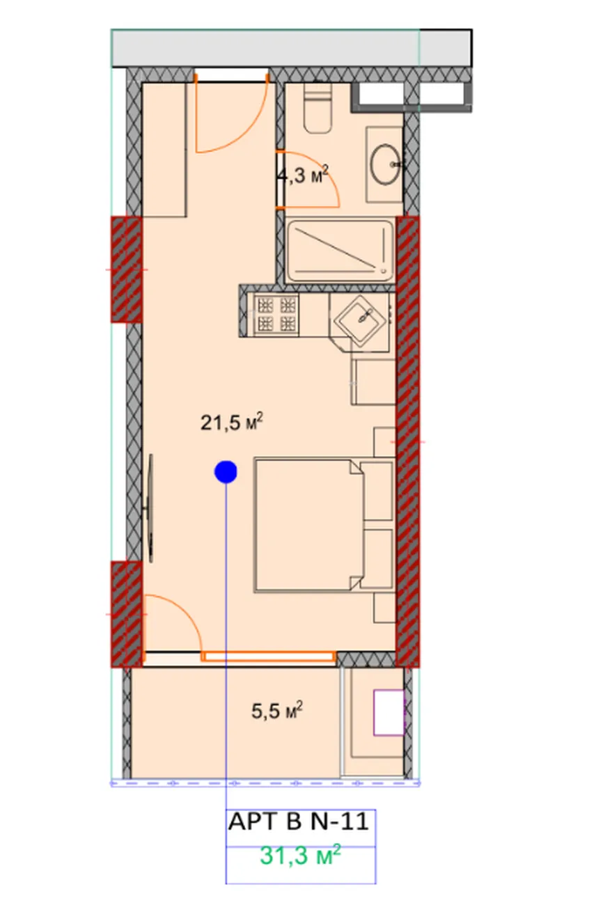
Moderní studio 31,3 м² v koncepčním bytovém komplexu OKTO Art House. Dokonalá kombinace prostoru, světla a funkčnosti - připravený prostor pro bydlení, tvorbu a investování.
📐 Rozložení a výhody:
- Hlavní oblast 21,5 м² kombinuje obývací pokoj, ložnici a kuchyň a nabízí tak možnost přizpůsobení.
- Samostatná moderní koupelna 4,3 м² a útulný balkon 5,5 м²který lze proměnit v relaxační zónu nebo mini oázu.
- Velká okna naplňují byt přirozeným světlem a vytvářejí pocit prostornosti a vzdušnosti.
👨👩👧 Vhodné pro:
✅ Mladí profesionálové a kreativní lidé - Stylový a funkční prostor pro život, práci a inspiraci.
✅ Turisté - Blízkost moře a rozvinutá infrastruktura zajišťují pohodlnou dovolenou v sezóně.
✅ Investoři - vysoká poptávka po pronájmech ateliérů, likvidita a potenciál růstu hodnoty jedinečného projektu.
📍 Příplatky:
V pěší vzdálenosti od kaváren, obchodů, nábřeží a dopravních zastávek. Komplex se vyznačuje moderním designem a promyšlenou infrastrukturou.
💬 Chcete se o bytě dozvědět více?
Zanechte žádost na webových stránkách nebo napište na WhatsApp - zašleme vám podrobný plán, podmínky nákupu a finanční kalkulace!













