Útulné studio s balkonem
🏡 Obecné informace:
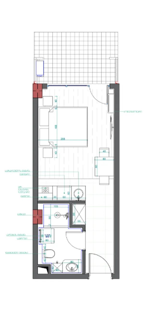
Útulné studio o rozloze 33,9 m² v prestižním rezidenčním komplexu Real Palace Green ve čtvrti Makhinjauri (Batumi). Obytná plocha činí 26,4 m² a soukromý balkon 7,5 m², ideální pro dovolenou s výhledem na moře.
📐 Rozložení a výhody:
Moderní otevřený prostor kombinuje obývací pokoj, prostor na spaní a kuchyňský kout. Na ranní kávu nebo večerní relaxaci je připraven obložený balkon. Koupelna je navržena s ohledem na moderní ergonomii. Všechny základní komunikace jsou již připojeny: elektrické body (18 ks), přívod vody, kanalizace a topení - zbývá jen doplnit finální úpravy podle vašeho vkusu.
👨👩👧 Vhodné pro:
✅ Mladí profesionálové a páry - pohodlný osobní prostor v pěší vzdálenosti od moře a infrastruktury.
✅ Turisté - vysoká poptávka po malých apartmánech k pronájmu, zejména během prázdnin.
✅ Investoři - jedna z nejlikvidnějších kategorií v Batumi, rychlá návratnost díky sezónnímu pronájmu a stabilnímu růstu cen.
📍 Příplatky:
Ve čtvrti Makhinjauri najdete vše, co potřebujete k životu a rekreaci: obchody, kavárny, nábřeží a výhodné dopravní spojení. Byt je ve fázi "zeleného rámu", což vám dává svobodu při výběru stylu a materiálů pro konečnou úpravu!
Máte zájem o koupi nebo se chcete dozvědět více informací? Zanechte dotaz na webových stránkách nebo nám napište na WhatsApp - připravíme pro vás kompletní kalkulaci a zodpovíme všechny vaše otázky! 🏠✨













