Prostorná ložnice se dvěma ložnicemi a panoramatickým balkonem
🏡 Obecné informace:
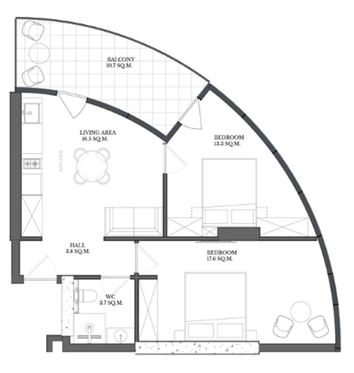
Praktický byt se 2 ložnicemi o celkové ploše 65.6 м² (obytná plocha - 54,9 m²). Klíčovou vlastností je. široký balkon 10,7 m²Nemovitost se nachází v moderním rezidenčním komplexu. Nachází se v moderním rezidenčním komplexu VR Forest Beach v oblasti letoviska Shekvetili, Batumi.
📐 Rozložení a výhody:
Zdařilá dispozice zahrnuje dvě samostatné ložnice (17,6 m² a 13,3 m²) a útulný obývací pokoj. 16.5 м². Koupelna je kombinovaná. Prostorný balkon 10,7 m² - je plnohodnotná další místnost pod širým nebem, kterou lze zřídit jako jídelnu, odpočinkovou zónu nebo kancelář. ✅ Výhody: izolované místnosti, úsporný prostor bez chodeb, maximálně funkční a velký balkon.
👨👩👧 Vhodné pro:
-
Malá rodina: Dvě ložnice poskytují soukromí a velký balkon se stává bezpečným soukromým prostorem pro hry dětí a rodinné stolování pod širým nebem jen pár minut od moře.
-
Sezónní pronájmy: Velký balkon je vážnou konkurenční výhodou, která zvyšuje atraktivitu bytu pro turisty a umožňuje stanovit vyšší nájemné ve srovnání s běžnými nabídkami.
-
Začínající investoři: Optimální kombinace ceny, likvidity formátu "dvě ložnice" a jedinečné vlastnosti (velký balkon). Zajišťuje stabilní poptávku a potenciál vyšších výnosů z pronájmu.
📍 Příplatky:
Byt se nachází v komplexu ve výstavbě. Okolí Shekvetili nabízí vše pro pohodlné bydlení a rekreaci: písečná plážObjekt se nachází na promenádě, kavárnách, obchodech a rozvíjející se infrastruktuře.
Chcete zhodnotit potenciál tohoto pozemku?
Podrobné informace o nákladech, načasování a individuálním výpočtu investičního přínosu získáte, když zanecháte žádost na webových stránkách nebo nám napíšete zprávu na WhatsApp pro rychlou konzultaci.













