Dvoupokojový pokoj s hotelovým životem
🏡 Obecné informace
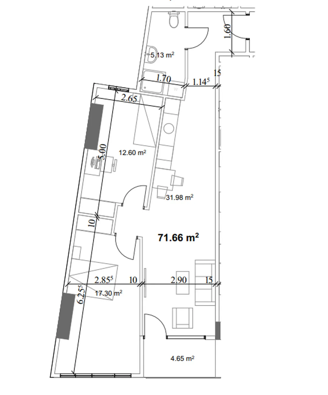
Prostorný 2pokojový byt o celkové ploše 71,66 m² s balkonem o rozloze 4,65 m². Nachází se v exkluzivním projektu Rezidence ELT OXY na Novém bulváru v Batumi - jedinečný life-hotelový komplex vytvořený ve spolupráci s mezinárodním řetězcem Barceló Hotels.
📐 Rozložení a výhody
Byt se skládá z velkého obývacího pokoje (31,98 m²) s kuchyňským koutem a dvou samostatných pokojů (12,60 m² a 17,30 m²), které jsou ideální pro ložnici a dětský pokoj nebo pracovnu. Koupelna je samostatná (5,13 m²) a balkon dodává útulný prostor pro relaxaci. Izolace pokojů poskytuje soukromí, zatímco panoramatická okna naplňují byt světlem a nabízejí příjemný výhled.
👨👩👧 Vhodné pro
-
Rodiny s dětmi: dvě oddělené místnosti vytvářejí klidný soukromý prostor pro každého a bezpečné sousedství a blízkost škol umožňují pohodlné bydlení.
-
Investoři: správa hotelu Occidental zaručuje stabilní příjmy z pronájmu a formát life-hotelu zajišťuje vysokou likviditu a stálou poptávku.
-
Turisté (při pronájmu): poloha v centru letoviska, jen pár kroků od moře, kaváren, restaurací a nábřeží.
📍 Kromě toho
Komplex je obklopen dobře rozvinutou infrastrukturou: obchody, dopravními uzly, kavárnami a pěšími zónami. Byt je k dispozici v různých patrech - můžete si vybrat variantu s preferovaným výhledem a úrovní soukromí.
✨ Zjistěte si exkluzivní podmínky ještě dnes!
Podrobné informace, fotografie a individuální nabídku získáte, když na webových stránkách zanecháte přihlášku nebo napíšete na WhatsApp. Váš život ve formátu OXY Residence začíná zde!













