Prostorná ložnice se zahradou
🏡 Obecné informace:
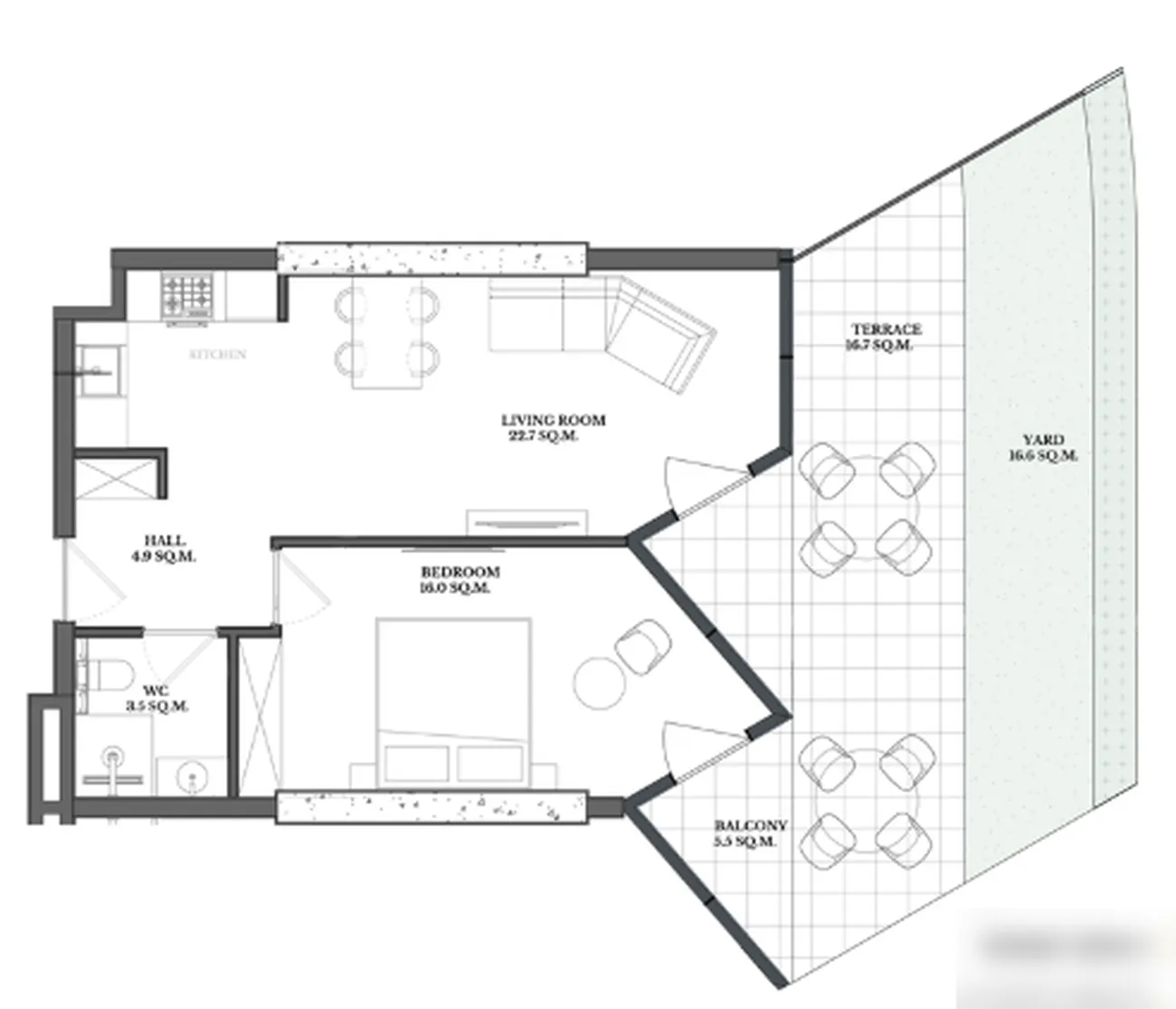
Jedinečný byt s 1 ložnicí o celkové ploše 85.9 м² (47,1 m² obytné plochy). Jeho hlavní hodnotou je rozsáhlá letní plocha 38.8 м²včetně balkonu, terasy a soukromý zelený dvůr 16,6 m². Nachází se v koncepčním komplexu VR Forest Beach в Shekvetili, Batumi.
📐 Rozložení a výhody:
Praktické uspořádání zahrnuje samostatnou ložnici (16,0 m²) a prostorný obývací pokoj s jídelnou. 22.7 м². Koupelna je kombinovaná. Zvláštností objektu je víceúrovňový soukromý prostor: balkon (5,5 m²), terasa (16,7 m²) и zelený dvůr (16,6 m²). ✅ Hlavní výhody: pocit vlastního domova, maximální spojení s přírodou, jedinečné uspořádání se třemi typy venkovních prostor.
👨👩👧 Vhodné pro:
-
Kreativní jednotlivci nebo páry: Ideální formát pro život na samotě u moře. Uzavřený dvůr poskytuje naprosté soukromí pro odpočinek, práci nebo venkovní koníčky, zatímco izolovaná ložnice zaručuje pohodlí.
-
Exkluzivní organizátoři pronájmu: Vzácná nabídka na trhu, která nemá masovou obdobu. Umožní vstoupit do segmentu prémiových pronájmů s vysokou ziskovostí díky unikátní soukromé zahradě.
-
Investoři, kteří hledají jedinečné aktivum: Vlastnost s vysokou zapamatovatelností a konkurenční výhodou. Soukromý dvůr výrazně zvyšuje kapitalizaci a zajišťuje udržitelnou poptávku ze strany náročných nájemců nebo kupujících.
📍 Příplatky:
Byt se nachází v moderním komplexu ve výstavbě. V sousedství Shekvetili je veškerá potřebná infrastruktura letoviska: písečná pláž a moře v pěší vzdálenosti nábřeží, kavárny, restaurace a obchody.
Chcete se o tomto jedinečném zařízení dozvědět více?
Pro podrobnou prezentaci, finanční kalkulaci a speciální podmínky zanechte žádost na webových stránkách nebo nám napište na WhatsApp pro rychlou konzultaci.













