Útulná ložnice s balkonem
🏡 Obecné informace:
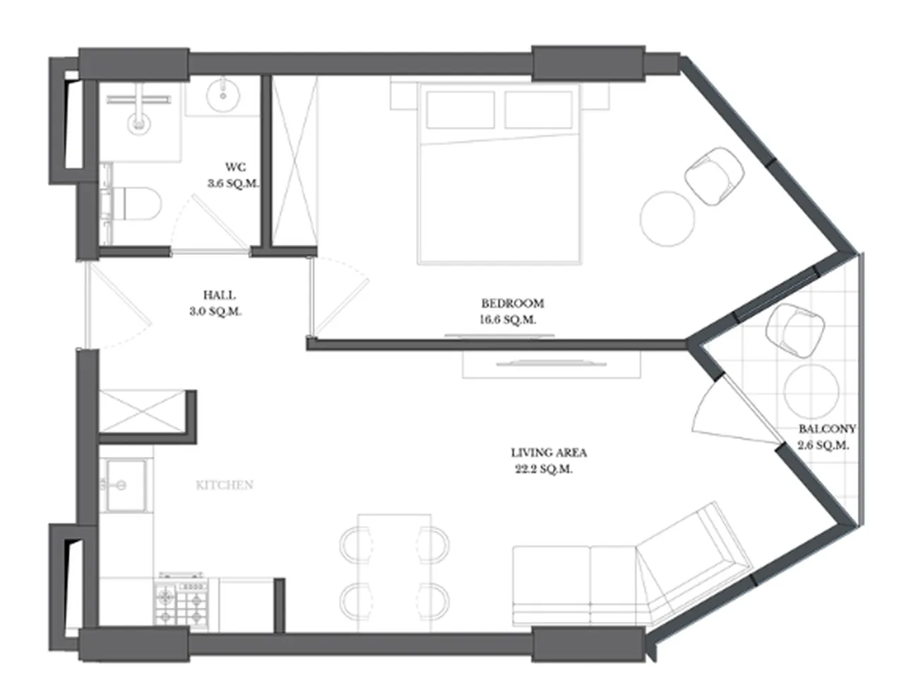
Komfortní byt s 1 ložnicí a celkovou plochou 47.9 м² (obytná plocha - 45,3 m²). Plocha zahrnuje balkon 2,6 m². Skvělá nabídka v novém komplexu VR Forest Beach v oblasti letoviska Shekvetili, Batumi.
📐 Rozložení a výhody:
Praktické uspořádání zahrnuje samostatnou ložnici (16,6 m²) a prostorný obývací pokoj s jídelnou. 22.2 м²oddělené malou halou. Koupelna je kombinovaná. Toto uspořádání nabízí více soukromí než klasické studio a... balkon doplňuje příjemný otevřený prostor. ✅ Výhody: oddělená ložnice pro soukromí, efektivní zónování, dobré přirozené světlo.
👨👩👧 Vhodné pro:
-
Páry nebo jedna osoba: Ideální formát pro ty, kteří si cení osobního prostoru. Izolovaná ložnice poskytuje klidné útočiště a blízkost moře dělá z každého dne dovolenou.
-
Pronájmy: Vyhledávaný formát, kterému často dávají přednost turisté a páry hledající pohodlnější alternativu studia. Zaručuje stabilní poptávku během prázdninové sezóny.
-
Investoři: Dobrá rovnováha mezi cenou a likviditou. Nemovitost s jednou ložnicí přitahuje širší okruh nájemníků než garsoniéra, což zajišťuje solidní návratnost investice.
📍 Příplatky:
Byt se nachází v moderním komplexu ve výstavbě. Oblast Shekvetili má veškerou potřebnou infrastrukturu pro rekreaci: písečná pláž v docházkové vzdálenosti, promenáda, kavárny, restaurace a obchody.
Zajímá vás tato nabídka?
Zjistěte aktuální cenu, termíny a všechny podrobnosti tím, že zanecháte požadavek na webových stránkách nebo nám napíšete na WhatsApp a dostanete rychlou odpověď.













