Chytré studio s prostorným balkonem
🏡 Obecné informace:
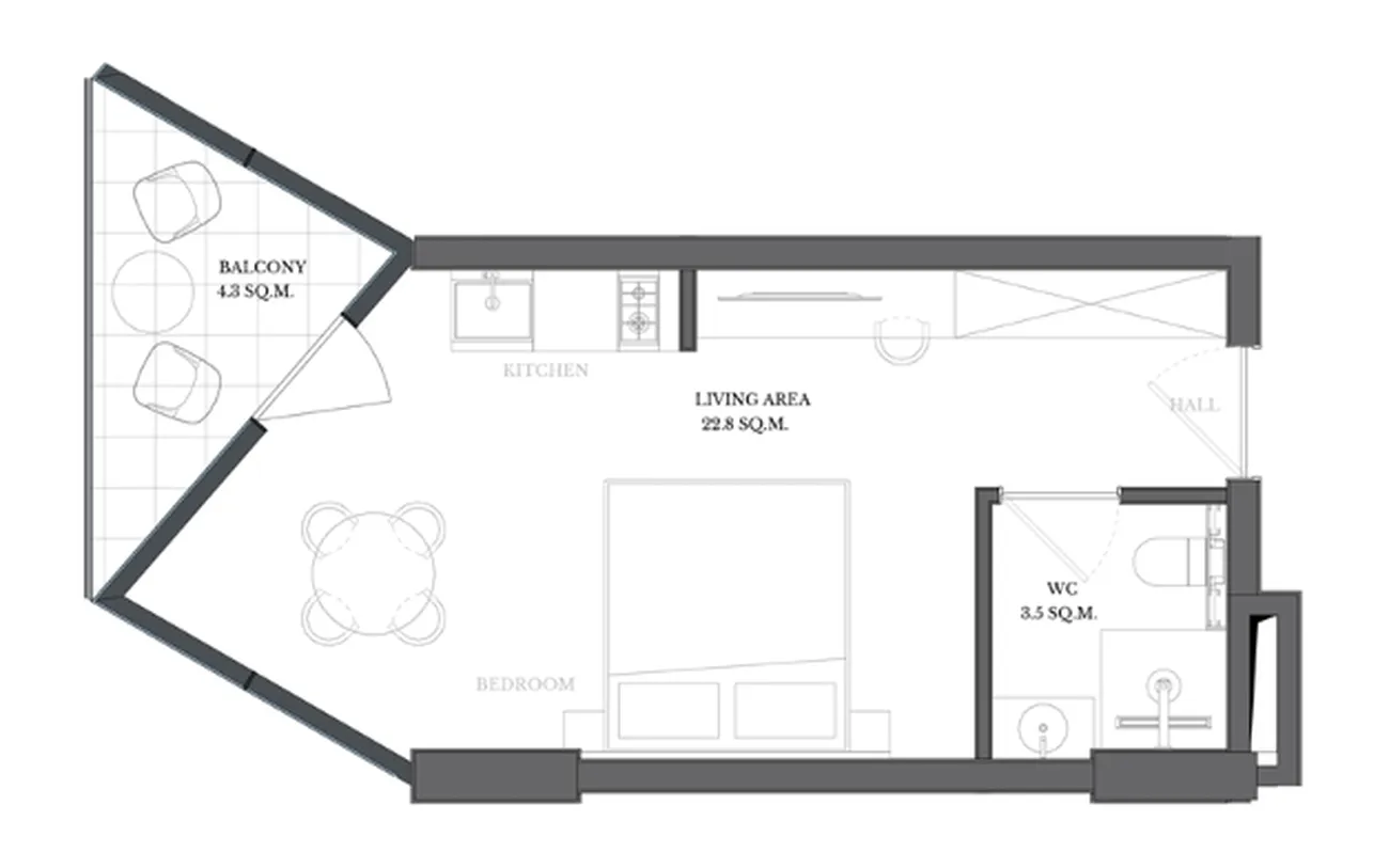
Moderní garsoniéra s 1 ložnicí o celkové ploše 30.6 м² (obytná plocha 26,3 m²). Klíčovou výhodou je balkon 4,3 m²což výrazně rozšiřuje využitelný prostor. Výhodná nabídka v novém komplexu VR Forest Beach в Shekvetili, Batumi.
📐 Rozložení a výhody:
Stručný otevřený prostor kombinuje obývací pokoj a kuchyň (22.8 м²). Koupelna v kombinaci. Prostorný balkon 4,3 m² je významným bonusem, který vám umožní vytvořit plnohodnotnou odpočinkovou zónu nebo mini venkovní jídelnu. ✅ Výhody: inteligentní využití každého metru, moderní uspořádání, zvětšení venkovní plochy.
👨👩👧 Vhodné pro:
-
Investoři, kteří hledají rychlý obrat: Studia jsou nejlikvidnějším a nejoblíbenějším formátem sezónních pronájmů v letovisku. Velký balkon zvyšuje konkurenceschopnost nemovitosti, zajišťuje stabilní poptávku a rychlou návratnost.
-
Sólo cestovatelé a páry: Ideální ekonomická varianta dovolené na pláži. Vše, co potřebujete k bydlení, je soustředěno v jednom světlém prostoru a balkon dodává pocit prostornosti a pohodlí.
-
Začátek v oblasti nemovitostí: Výborná první investice s nízkým vstupním prahem v perspektivní rekreační oblasti s vysokým potenciálem růstu nájemného.
📍 Příplatky:
Byt se nachází v komplexu ve výstavbě. Okolí Shekvetili nabízí veškerou potřebnou infrastrukturu letoviska: písečná pláž a moře v pěší vzdálenosti, promenáda, kavárny, restaurace a obchody.
Splňuje tento návrh vaše cíle?
Pro podrobný výpočet výnosu, aktuální náklady a speciální podmínky zanechte žádost na našich webových stránkách nebo pošlete zprávu WhatsApp pro okamžitou konzultaci.













