Простора тераса біля лісового пляжу
🏡 Загальна інформація:
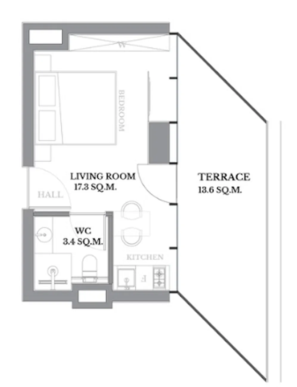
Затишна студія площею 34,3 м² у споруджуваному еко-комплексі VR Forest Beach. Розташована в унікальному природному районі Шекветілі (Батумі), де сосновий ліс зустрічається із золотистим піщаним пляжем, створюючи ідеальні умови для спокійного відпочинку і перспективних інвестицій.
📐 Планування та переваги:
Практична житлова зона (17,3 м²) з розумним плануванням об'єднує вітальню, спальню і кухню, створюючи комфортний простір для життя. Головною перевагою є простора тераса (13,6 м²), яка практично дорівнює житловій площі та стає вашою особистою відкритою вітальнею на природі. Акуратний санвузол (3,4 м²) готовий до чистового оздоблення. Ідеальне поєднання функціонального інтер'єру та великого приватного зовнішнього простору.
👨👩👧 Підходить для:
-
Інвесторів: Формат студії з великою терасою в еко-курорті, що активно розвивається, - високоліквідний актив. Доступна ціна входу, стабільний попит на оренду в сезон і унікальне природне оточення забезпечують відмінну окупність і прибутковість.
-
Шанувальників спокійного відпочинку на природі: Ідеальний варіант для особистого притулку. Тиша, хвойне повітря, близькість до національного парку і пляжу дають змогу повністю перезавантажитися в гармонії з природою.
📍 Додатково:
Комплекс зводиться в перспективному курортному кластері з інфраструктурою, що формується. У кроковій доступності з'являться кафе, магазини, об'єкти для активного відпочинку. Територія національного парку "Шекветілі" і протяжний піщаний пляж знаходяться за кілька хвилин ходьби.
Хочете дізнатися умови та розрахувати прибутковість?
📲 Для отримання детального фінансового плану, планування та спеціальних умов від забудовника залиште заявку на сайті або напишіть нам у WhatsApp. Ми надамо вам повну презентацію проєкту в цифровому форматі!













