Amplia casa adosada
🏡 Información general:
En un complejo vanguardista Residencia Grand Botanicosituado en la localidad turística de Chakvi, ecológicamente limpia (a sólo 500 metros del Mar Negro), es presentado por espacioso adosado de tres habitaciones superficie total 176,67 м². Se trata de una propiedad en toda regla con terreno propio, ideal para vivir en familia o como inversión de primera calidad. La propiedad se ofrece en el formato de "marco blanco" (acabado sin acabados) o "marco verde" (preacabado): usted elige el grado de preparación en función de sus planes y presupuesto.
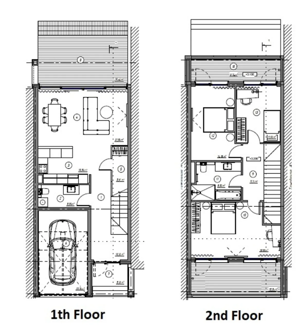
📐 Disposición y ventajas:
La casa adosada está diseñada pensando en el máximo confort. Tres dormitorios aislados proporcionan intimidad a todos los miembros de la familia. Amplio sala de estarLa cocina y el comedor se convierten en el centro del entretenimiento familiar y en un lugar ideal para recibir invitados. La casa está equipada con dos cuartos de baño (como mínimo), así como terreno propioLa propiedad cuenta con una zona de barbacoa, un jardín o un parque infantil. El acristalamiento panorámico llena de luz el interior, y la ubicación en una zona ecológicamente limpia ofrece vistas a la vegetación y al mar. La tecnología de construcción de armazón monolítico garantiza la resistencia a los terremotos y la durabilidad.
👨👩👧 Adecuado para:
-
Familias con niños: Tres dormitorios aislados y una parcela privada dan espacio suficiente para que una familia con dos o más hijos viva cómodamente. Chakvi es conocido por su ambiente tranquilo y verde, escuelas, guarderías y la playa está a sólo unos minutos a pie.
-
Turistas e inversores: El formato de casa adosada con terreno es muy demandado en el mercado de alquiler. La proximidad al mar, las infraestructuras desarrolladas y la cómoda accesibilidad en transporte (el aeropuerto de Batumi está a 20 minutos) garantizan una ocupación estable y una rentabilidad atractiva.
-
Inversores: Chakvi es un barrio en pleno desarrollo, con un creciente flujo turístico y potencial de crecimiento de precios. Adquirir una casa adosada en la fase de construcción permite asegurarse el precio más favorable.
📍 Extras:
A poca distancia del complejo hay supermercados Spar y Maria Kakiashvili, cafeterías, farmacias, escuela y guardería. Parada de transporte público (ruta # 440) permite un fácil acceso al centro de Batumi en 25 minutos. El territorio de Grand Botanico Residence incluye un patio cerrado ajardinado, piscina exterior, centro de spa con sauna, zonas infantiles y deportivas, así como aparcamiento subterráneo. Todo lo necesario para vivir cómodamente y disfrutar del tiempo libre está ya preparado.
📲 ¿Quieres consultar la distribución, los acabados y los precios actuales? Obtenga todos los detalles sobre esta casa adosada simplemente dejando una solicitud en el sitio web o enviándonos un mensaje de WhatsApp. El proyecto está ganando popularidad - no pierda la oportunidad de comprar una acogedora casa cerca del mar en una zona ecológicamente limpia.













