Casa adosada panorámica con azotea
🏡 Información general:
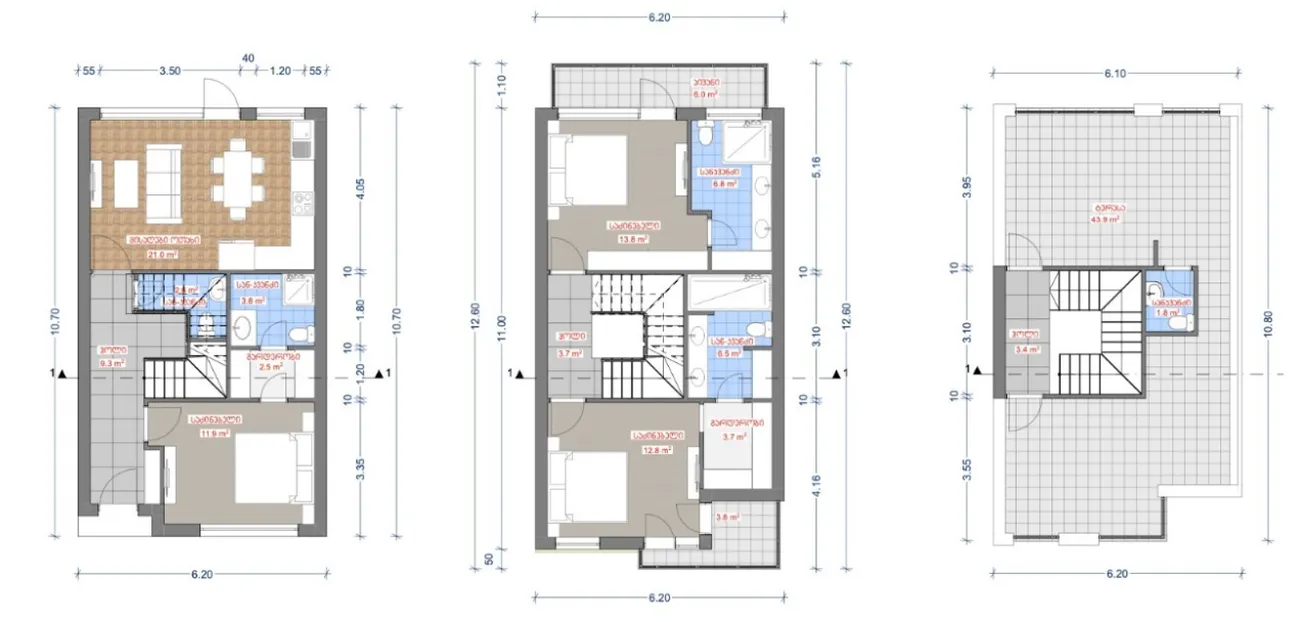
Una casa adosada de tres niveles de 291 m² (129,4 m² de superficie habitable) situada en el complejo Seashell Cottages, en la zona ecológica de Kvariati. La casa consta de dos plantas y un tejado aprovechado que se convierte en una zona recreativa en toda regla. El acabado llave en mano con un conjunto completo de sistemas de ingeniería le permite comenzar a utilizar la propiedad de inmediato para residencia privada o alquiler de primera calidad.
📐 Disposición y ventajas:
En la planta baja hay un amplio salón-cocina con acceso a la terraza cubierta y a la piscina privada, así como un baño de invitados. La primera planta está dedicada a dos dormitorios aislados con sus propios cuartos de baño y vestidores. La principal característica arquitectónica es la azotea, donde se ha habilitado una zona de solarium con vistas panorámicas al mar y a la montaña. Los cinco cuartos de baño de la casa proporcionan la máxima autonomía a todos los miembros de la familia e invitados.
👨👩👧 Adecuado para:
👨👩👧 Familias con niños - Amplias habitaciones aisladas, una piscina privada y una zona de juegos en la azotea dan libertad a los niños, mientras que la comunidad cerrada proporciona seguridad. Hay un jardín de infancia y una escuela en Kvariati cerca.
✈️ Turistas - El formato "dos plantas + azotea" permite alquilar la casa con la máxima rentabilidad: cada dormitorio tiene su propio cuarto de baño y las zonas comunes impresionan a los huéspedes. La playa está a 5-7 minutos a pie, con cafeterías y las coloridas calles de Kvariati alrededor.
📈 Inversores - objeto de un formato único con una disposición rara vez se encuentran en la región (5 baños, techo explotable). El complejo con su propia infraestructura (piscina infinita, saunas, gimnasio) garantiza una alta demanda y valor de alquiler premium.
📍 Extras:
A poca distancia - supermercados, farmacias, parada de transporte a Batumi. El complejo está situado en la primera línea del mar, pero en una posición elevada, por lo que la casa tiene una vista, y el ruido del paseo marítimo no molesta. La casa tiene una entrada independiente, plaza de aparcamiento y seguridad las 24 horas. La infraestructura del complejo incluye una piscina infinita comunitaria con vistas al mar, saunas finlandesa y turca, un moderno gimnasio y una zona de barbacoa.
📲 Obtén una presentación detallada, precio actualizado y opciones de pago a plazos: solo tienes que dejar una solicitud en línea o enviarnos un mensaje por WhatsApp.













