Villa 283 m² con veranda
🏡 Información general:
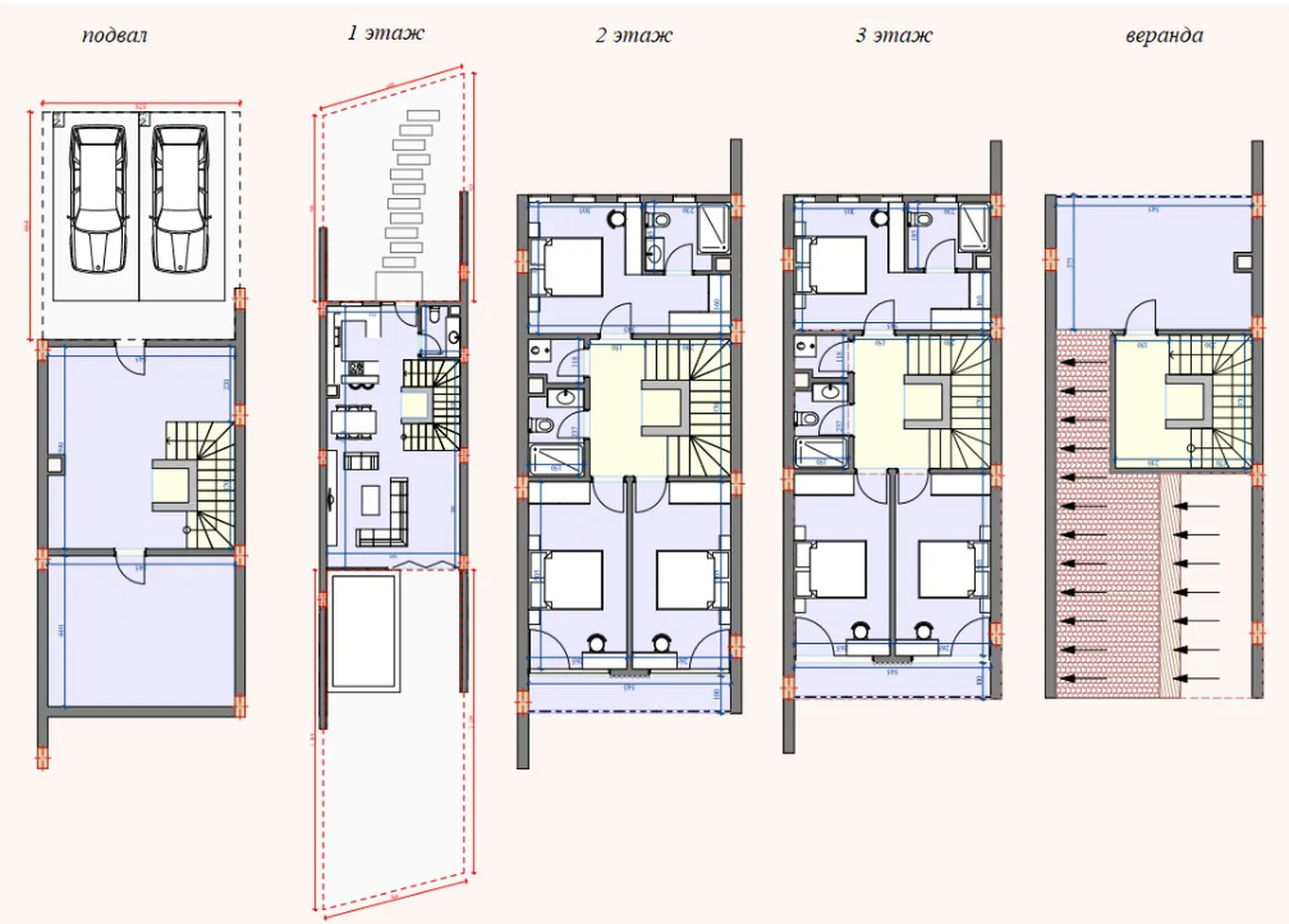
En un proyecto exclusivo. Villas Diamante espacioso Villa de 6 habitaciones superficie total 283,6 м²La propiedad está situada en el dinámico barrio del aeropuerto de Batumi. La propiedad ocupa tres niveles más sótano y se complementa con su propia veranda - La solución ideal para aquellos que buscan una propiedad espaciosa con una infraestructura bien pensada a poca distancia del mar.
📐 Disposición y ventajas:
La villa ha sido diseñada para maximizar el confort de una familia numerosa o una residencia ejecutiva. Las tres plantas se distribuyen de forma inteligente en tres plantas seis habitaciones aisladasque incluye amplios dormitorios, estudio y salón comedor. Sótano puede adaptarse para bodega, cine en casa o gimnasio. Debe prestarse especial atención a veranda - un acogedor espacio abierto para desayunos y recepciones al aire libre. Los techos altos, los acristalamientos panorámicos y los materiales de calidad (hormigón celular Ytong, gres porcelánico en la fachada) garantizan el calor en invierno y el frescor en verano, mientras que los cimientos antisísmicos sobre un campo de pilotes garantizan la fiabilidad.
👨👩👧 Adecuado para:
-
Familias con niños: Seis habitaciones permiten a cada miembro de la familia disponer de un espacio privado: zona para niños, invitados y padres. El territorio propio y la lejanía de las carreteras ruidosas crean un entorno seguro para los niños. En la zona hay guarderías, escuelas y centros de desarrollo.
-
Turistas e inversores: El formato de chalet completo con terreno y veranda es muy demandado en el segmento de alquileres de alta gama: este tipo de propiedades son elegidas por familias con niños y empresas para largas vacaciones. La proximidad al aeropuerto (hasta 5 minutos), a las playas de Gonio y Sarpi, así como a la fortaleza de Gonio-Apsaros y al Jardín Botánico garantiza un alto interés turístico.
📍 Extras:
La zona del aeropuerto se está urbanizando activamente, pero sigue siendo ecológica y está cerca del mar (hasta 500 metros). A poca distancia se encuentran Metro City, Nikora supermercados, cafeterías, paradas de autobús, así como el parque bien mantenido de Lech y Maria Kaczyński. La villa está equipada con un pozo autónomo con agua potable, gasificación, todas las comunicaciones centrales. Esta es una casa lista con un diseño bien pensado y acabado completo - sólo tendrá que arreglar los acentos a su gusto.
📲 ¿Quieres una distribución completa por niveles, detalles de acabados y costes? Deje una solicitud en la página web o escríbanos un mensaje de WhatsApp: le facilitaremos toda la información actualizada sobre este chalet. El número de casas en el complejo es limitado, tal área y funcionalidad - una rareza para una ubicación junto al mar.













