Уютная студия для городской жизни
🏡 Общая информация:
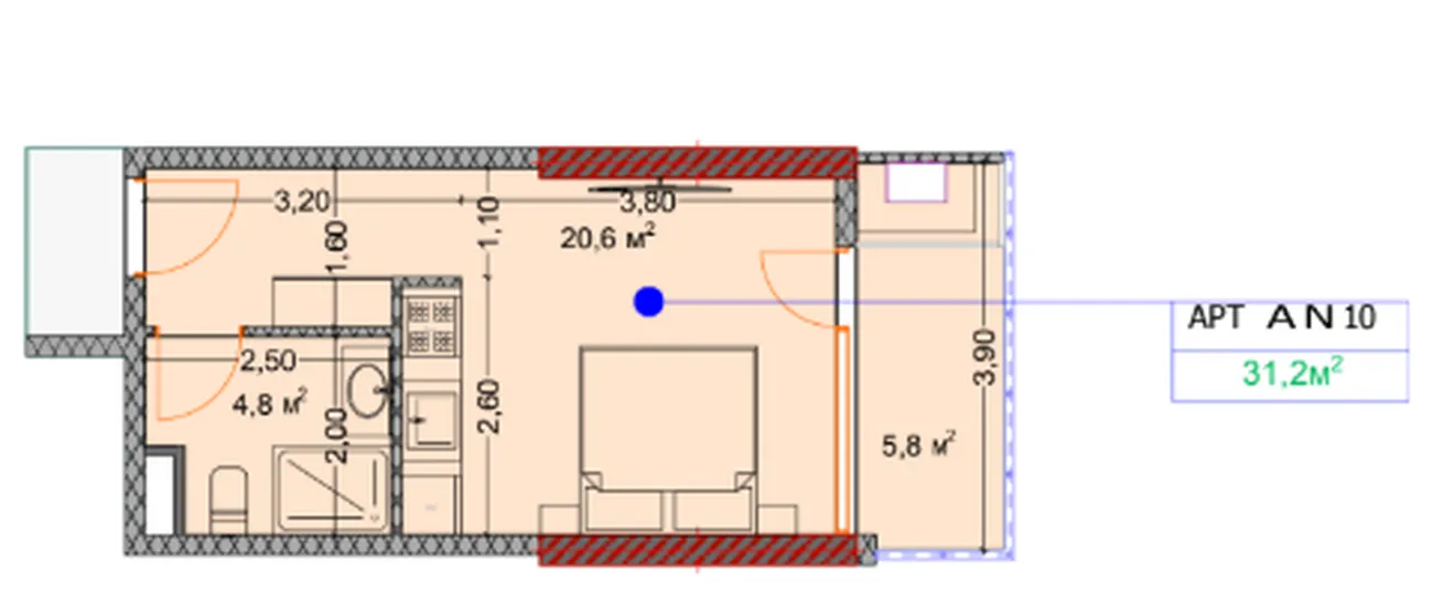
Это современная студия с компактной и удобной планировкой. Её общая площадь составляет 31.20 м², включая балкон 5,8 м². Объект находится в строящемся жилом комплексе в одном из современных районов Батуми.
📐 Планировка и преимущества:
Планировка квартиры делает её идеальным выбором для комфортного и практичного проживания:
-
Основное жилое пространство (20,6 м²): Светлая и уютная комната, которую легко организовать под свои нужды, разместив зону отдыха, сна и рабочее место.
-
Балкон (5,8 м²): Личный уголок на свежем воздухе для утреннего кофе, чтения или отдыха, что особенно ценно в городской квартире.
-
Преимущество: Оптимальное использование каждого метра создаёт комфортную среду без ощущения тесноты, что является признаком качественного проектирования.
👨👩👧 Подходит для:
-
Студента, молодого специалиста или солиста: Отличный вариант для первой собственной недвижимости или комфортного проживания в городе. Современный формат и разумная цена.
-
Инвесторов: Студии такого формата пользуются неизменно высоким спросом на рынке аренды Батуми, как у туристов, так и у местных жителей. Это гарантирует быструю окупаемость и стабильный пассивный доход.
📍 Дополнительно:
Район с развивающейся инфраструктурой обеспечивает всё необходимое для повседневной жизни в шаговой доступности. До моря и центра города — удобное транспортное сообщение.
💡 Хотите узнать точную стоимость, детальный план и условия покупки на этапе строительства?
Просто оставьте заявку на сайте или напишите нам в WhatsApp — и мы оперативно вышлем вам полную презентацию и финансовый расчёт по этой студии.















