ВИП квартира с авторской террасой
🏡 Общая информация:
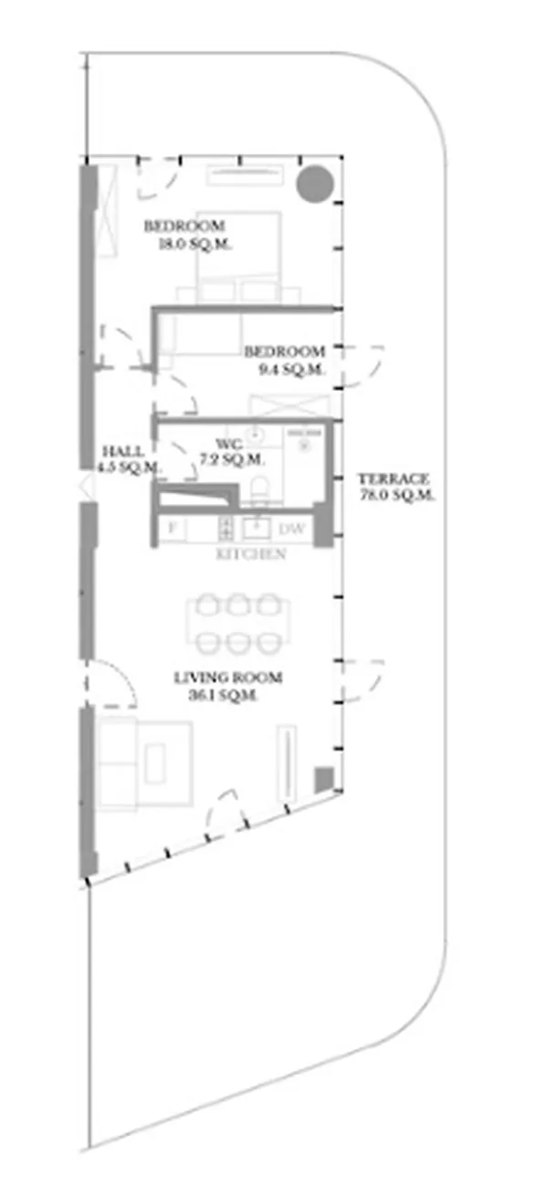
Элитная 2-комнатная квартира с рекордной общей площадью 153.2 м² (жилая — 75.2 м²). Её жемчужина — эксклюзивная терраса 78.0 м², превосходящая по размеру иные квартиры. Расположена в престижном комплексе VR Forest Beach в Шекветили, Батуми.
📐 Планировка и преимущества:
Простор включает две изолированные спальни (18.0 м² и 9.4 м²) и огромную гостиную-столовую 36.1 м². Санузел раздельный. Планировочное решение беспрецедентно: терраса 78.0 м² сопоставима с отдельным домом и открывает безграничные возможности для обустройства. ✅ Ключевые преимущества: максимальная приватность, панорамное остекление, ощущение пентхауса и феноменальная outdoor-зона.
👨👩👧 Подходит для:
-
Требовательных семей: Простор и изолированность комнат обеспечивают комфорт для всех. Огромная терраса — идеальное личное пространство для отдыха, игр и приема гостей в окружении природы.
-
Владельцев премиум-аренды: Уникальный объект для сегмента luxury-отдыха. Такие параметры, особенно терраса, резко выделяют объект на рынке аренды и позволяют устанавливать премиальную ставку.
-
Стратегических инвесторов: Эксклюзивное предложение с высоким потенциалом капитализации. Динамичный рост цен в элитном сегменте курортной недвижимости делает эту квартиру выгодной долгосрочной инвестицией.
📍 Дополнительно:
Объект находится в строящемся комплексе бизнес-класса. Окружение — развитая курортная инфраструктура: первая береговая линия, песчаный пляж, рестораны, кафе и прогулочная набережная. Это предложение для тех, кто ценит уникальность и статус.
Готовы рассмотреть эксклюзивное предложение?
Для получения полного досье объекта, подробных планировок и индивидуального расчета инвестиционной привлекательности оставьте заявку на сайте или напишите нам в WhatsApp.















