WPCS 2.2.0.5
"OKTO Art House"

Современная студия 31.30 м² в "OKTO Art House"

Характеристики объекта

Задать вопрос об объекте

Застройщик: OKTO

Рынок: Первичный

Возраст дома: Новостройка

Состояние: Не требует ремонта

Город : Батуми, Новый Бульвар

Этаж: 19

Блок: А

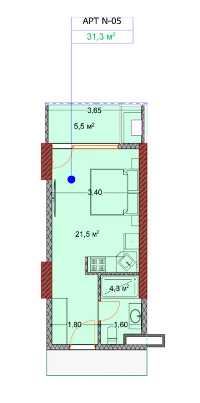
Площадь: 31.30 м²

Тип недвижимости: Студия

Статус недвижимости:  Строится

Локация

Места рядом
Аэропорт
7 мин.
Супермаркет
4 мин.
Больница
7 мин.
Школа
6 мин.
Детский сад
6 мин.
Торговый центр
10 мин.

План платежей

Стоимость от $54 149
Условия и планы платежей регулярно изменяются, актуальные данные предоставит наш специалист.
Первоначальный взнос
15%
Беспроцентная рассрочка от застройщика
85%
Рассчитайте платеж

Дополнительные характеристики

Современная студия в Батуми

Уютная студия у моря с большим балконом

🏡 Общая информация
Это современная студия в строящемся жилом комплексе в одном из новых районов Батуми. Её общая площадь составляет около 31.3 м², включая просторный балкон 5,5 м².

📐 Планировка и преимущества
Квартира предлагает открытое светлое пространство, идеальное для современного образа жизни:

  • Просторная гостиная-спальня (21,5 м²): Свободная планировка позволяет создать многофункциональную зону для отдыха, работы и приёма гостей.

  • Большой балкон (5,5 м²): Ваша личная терраса для утреннего кофе, вечернего отдыха или создания зелёного уголка.

  • Современный санузел (4,3 м²).

👨‍👩‍👧 Подходит для

  • Молодых специалистов, студентов и пар: Идеальный вариант для первого собственного жилья или временного проживания. Современная планировка и близость к морю создают комфортные условия для жизни.

  • Инвесторов: Студии в Батуми — наиболее ликвидный сегмент на рынке аренды. Благодаря туристическому потоку и развивающейся инфраструктуре района, объект обладает высоким потенциалом для стабильного дохода.

📍 Дополнительно
Район активно развивается, в шаговой доступности формируется вся необходимая инфраструктура. До моря можно добраться за несколько минут.


💡 Хотите узнать подробности о планировке, стоимости и условиях покупки?
Оставьте заявку на сайте или напишите нам в WhatsApp — и мы вышлем вам полную информацию по этой студии.

Каталог объекта
Получить на WhatsApp
Карина
Эксперт по недвижимости

    Напишите нам в мессенджеры:
    Задать вопрос
    Подборать недвижимость
    Получить актуальный каталог

    Подборки жилой недвижимости

    Наши контакты
    The Residence
    Грузия, Батуми, ул. Шерифа Химшиашвили, дом 1, офис 1204
    Не нашли, что искали?
    Ответьте на 4 вопроса - получите индивидуальную подборку объектов для вас
    Начать подбор
    Не нашли, что искали?
    Получите готовый каталог ТОП объектов в WhatsApp или индивидуальную подборку по вашим критериям