Студия с террасой
🏡 Общая информация:
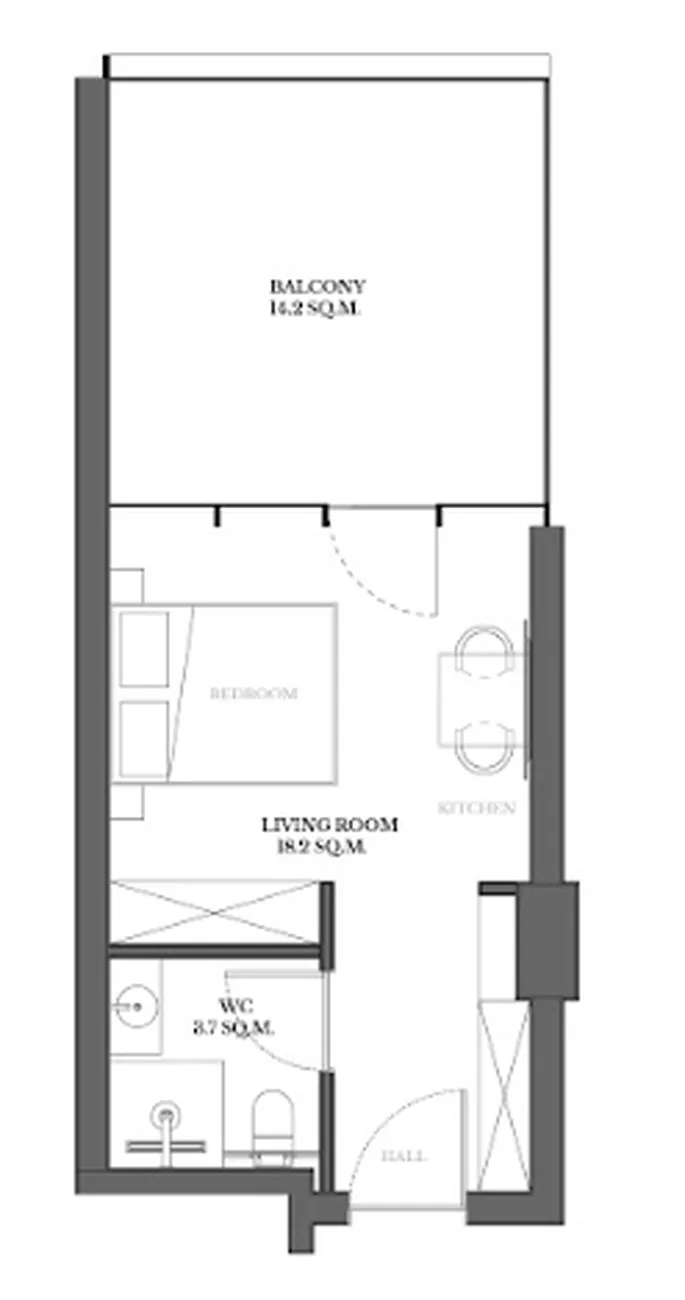
Практичная студия площадью 36,1 м² в строящемся эко-комплексе VR Forest Beach. Расположена в уникальном природном районе Шекветили (Батуми), где сосновый лес встречается с протяженным песчаным пляжем, создавая идеальные условия для инвестиций и отдыха на природе.
📐 Планировка и преимущества:
Компактная жилая зона (18,2 м²) с умной планировкой эффективно объединяет место для отдыха, сна и готовки. Главный козырь — просторная терраса (14,2 м²), площадь которой сопоставима с комнатой. Это ваша приватная открытая площадка для завтраков на свежем воздухе и вечернего отдыха. Аккуратный санузел (3,7 м²) ждет чистовой отделки. Идеальный баланс внутреннего уюта и внешнего простора.
👨👩👧 Подходит для:
-
Инвесторов: Формат студии с большой террасой в новом курортном комплексе — один из самых ликвидных вариантов для сдачи в аренду. Низкий порог входа, высокий спрос в сезон и динамичное развитие инфраструктуры Шекветили обещают быструю окупаемость.
-
Любителей активного отдыха на природе: Идеальный «кемпинг» с комфортом для тех, кто ценит прогулки по лесу, купание в море и желает иметь собственный уголок для восстановления сил в экологически чистом месте.
📍 Дополнительно:
Комплекс возводится в перспективном курортном кластере. В пешей доступности будут магазины, кафе, объекты сервиса. Территория национального парка «Шекветили» и песчаный пляж находятся в нескольких минутах ходьбы.
Хотите узнать точные цифры и условия?
📲 Для получения детального финансового расчета, планировки и специальных условий от застройщика оставьте заявку на сайте или напишите нам в WhatsApp. Мы подготовим для вас полный пакет документов в цифровом формате!















