WPCS 2.2.0.5
"VR Shekvetili"

Двушка с террасой и личным садом 95.90 м² в "VR Shekvetili"

Характеристики объекта

Задать вопрос об объекте

Застройщик: Archi

Рынок: Первичный

Возраст дома: Новостройка

Состояние: Не требует ремонта

Город : Батуми, Шекветили

Этаж: 1

Блок: B1

Площадь: 95.90 м²

Тип недвижимости: 2 комнатная квартира

Статус недвижимости: Строится

Локация

Места рядом
Аэропорт
55 мин.
Супермаркет
44 мин.
Больница
52 мин.
Школа
41 мин.
Детский сад
43 мин.
Торговый центр
48 мин.

План платежей

Стоимость от $205 284
Условия и планы платежей регулярно изменяются, актуальные данные предоставит наш специалист.
Первоначальный взнос
30%
При передаче
70%
Рассчитайте платеж

Дополнительные характеристики

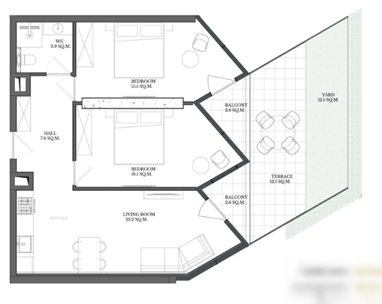
Двушка с террасой и личным садом

🏡 Общая информация:

Просторная 2-комнатная квартира с общей площадью 95.9 м² (жилая — 66.3 м²). Её особый шарм — многоуровневая летняя зона 29.6 м² с двумя балконами, просторной террасой и приватным зеленым двором 12.1 м². Расположена в современном жилом комплексе VR Forest Beach в Шекветили, Батуми.

📐 Планировка и преимущества:

Удачная планировка включает две изолированные спальни (16.1 м² и 15.5 м²) и светлую гостиную 23.2 м². Санузел совмещенный. Квартира предлагает редкое сочетание outdoor-пространств: два балкона, терраса 12.1 м² и эксклюзивный зеленый двор 12.1 м². ✅ Преимущества: идеальный баланс приватности и простора, несколько зон для отдыха на свежем воздухе, изолированность комнат.

👨‍👩‍👧 Подходит для:

  • Семьи, мечтающей о доме у моря: Закрытый двор — безопасное личное пространство для детей и отдыха взрослых. Две спальни обеспечивают комфорт для всех, а близость к пляжу делает каждый день праздником.

  • Предпринимателей в сфере аренды: Уникальный набор летних зон (балконы, терраса, сад) делает объект крайне привлекательным для туристов, позволяя формировать конкурентное предложение для взыскательных отдыхающих.

  • Инвесторов, ценящих диверсификацию: Объединение формата популярной «двушки» с редкой опцией личного сада создает высоколиквидный актив с повышенным арендным потенциалом и устойчивостью к колебаниям рынка.

📍 Дополнительно:

Квартира находится в строящемся комплексе премиум-класса. Инфраструктура района Шекветили полностью ориентирована на курортный отдых и комфортную жизнь: в шаговой доступности море, песчаные пляжи, прогулочная набережная, множество кафе и ресторанов.


Заинтересованы в этом сбалансированном предложении?
Чтобы получить полный комплект документов, уточнить текущую стоимость и рассчитать потенциальную доходность, оставьте заявку на сайте или напишите нам в WhatsApp для оперативной связи.

Каталог объекта
Получить на WhatsApp
Карина
Эксперт по недвижимости

    Напишите нам в мессенджеры:
    Задать вопрос
    Подборать недвижимость
    Получить актуальный каталог

    Подборки жилой недвижимости

    Наши контакты
    The Residence
    Грузия, Батуми, ул. Шерифа Химшиашвили, дом 1, офис 1204
    Не нашли, что искали?
    Ответьте на 4 вопроса - получите индивидуальную подборку объектов для вас
    Начать подбор
    Не нашли, что искали?
    Получите готовый каталог ТОП объектов в WhatsApp или индивидуальную подборку по вашим критериям