Светлая лаконичная однушка
🏡 Общая информация:
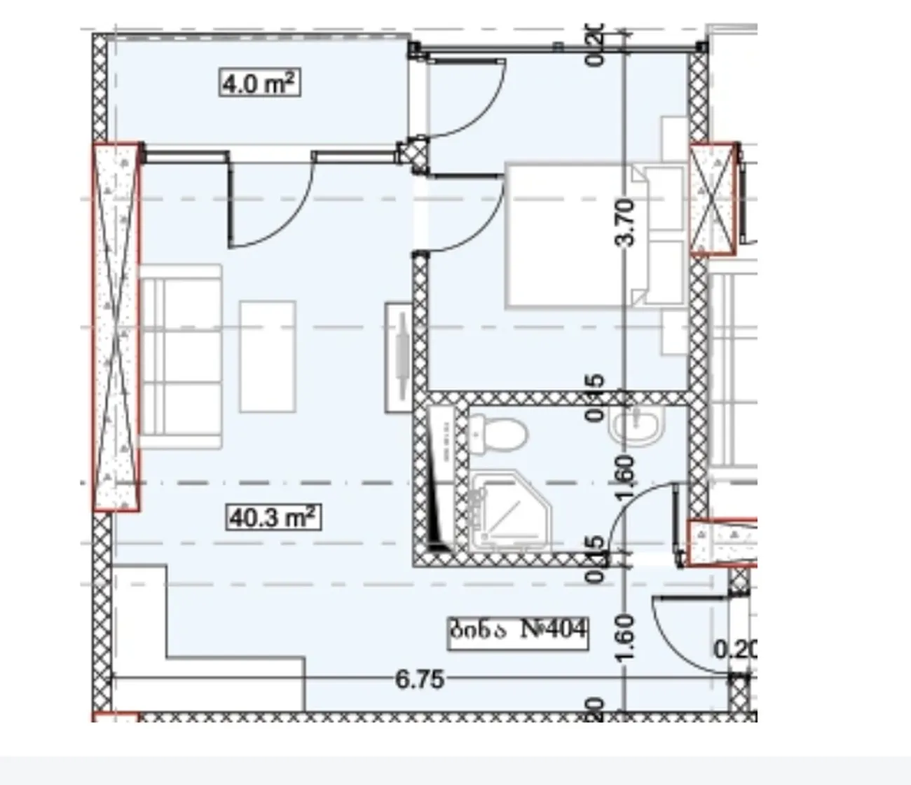
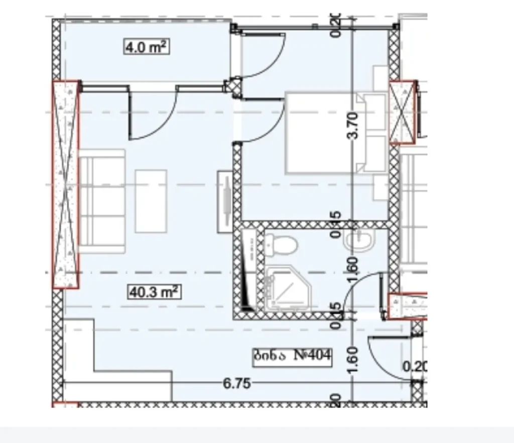
Это современная 1-комнатная квартира в строящемся клубе «Modern Ultra». Общая площадь составляет 44.3 м² (жилая — 40.3 м², балкон — 4.0 м²). Локация — самый живописный Старый Город Батуми.
📐 Планировка и преимущества:
Продуманное единое пространство объединяет уютную спальную зону и современную кухню-гостиную. Отдельный балкон (4.0 м²) станет вашим уголком для отдыха с чашкой кофе. Квартира расположена на 14-м этаже, что гарантирует панорамный вид, обилие солнечного света и атмосферу тишины и уединения.
👨👩👧 Подходит для:
-
Молодых специалистов и пар: Идеальный старт для самостоятельной жизни или комфортное личное пространство в самом сердце города. Высокий этаж дарит чувство приватности и покоя.
-
Инвесторов: Высоколиквидный объект в формате «студио+», пользующимся максимальным спросом на туристическую аренду. Компактность и отличная локация обеспечивают быструю окупаемость и стабильный доход.
-
Для отдыха и жизни у моря: Готовое решение для тех, кто хочет иметь свой уголок в Батуми в шаговой доступности от пляжа, кафе и основных достопримечательностей.
📍 Дополнительно:
Квартира находится в эпицентре событий: все необходимое — магазины, кафе, набережная, остановки транспорта — расположено в нескольких минутах ходьбы. Высокий этаж открывает прекрасные виды и дарит ощущение простора.
Интересуют точные сроки сдачи, условия оплаты и детали отделки?
📞 Оставьте заявку на сайте или напишите в WhatsApp — и мы оперативно предоставим вам полную информацию по этой квартире!















