Просторная резиденция с парком
🏡 Общая информация:
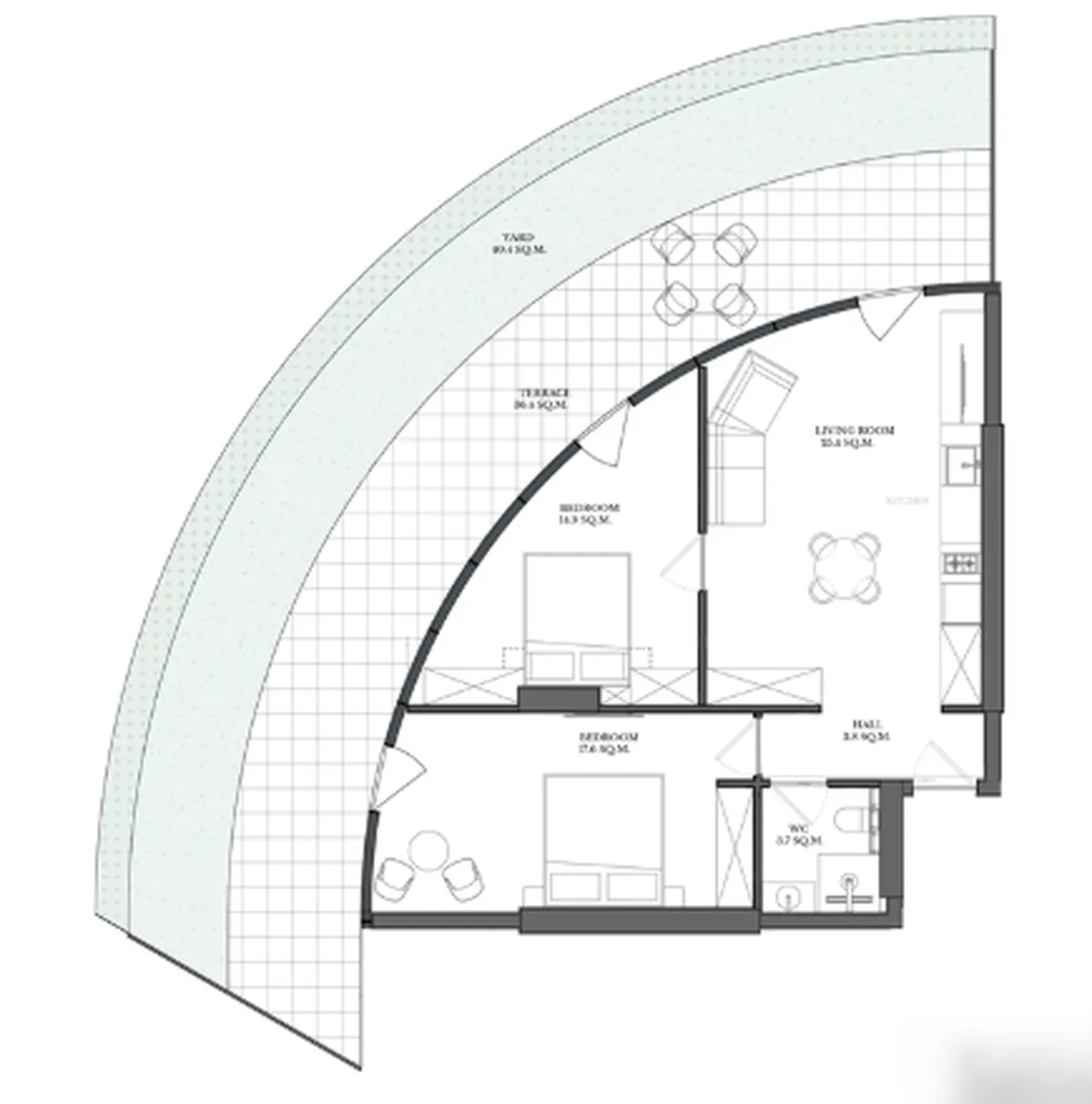
Роскошная 2-комнатная квартира-резиденция с общей площадью 142.2 м² (жилая — 65.4 м²). Её уникальное предложение — грандиозная летняя зона 76.8 м², включающая большую террасу и огромный приватный парк 40.4 м². Расположена в эксклюзивном комплексе VR Forest Beach в Шекветили, Батуми.
📐 Планировка и преимущества:
Планировка включает две изолированные спальни (14.9 м² и 17.6 м²) и просторную гостиную-столовую 25.4 м². Санузел совмещенный. Фактически, вы приобретаете не только квартиру, но и частный ландшафтный участок (40.4 м²) с террасой для отдыха. ✅ Ключевые преимущества: максимальная приватность, ощущение жизни в отдельном доме, безграничные возможности для ландшафтного дизайна и отдыха на природе.
👨👩👧 Подходит для:
-
Семьи для постоянного проживания: Закрытая, охраняемая территория комплекса и собственный большой двор создают идеальные условия для безопасной и комфортной жизни с детьми в окружении природы, в минутах ходьбы от моря.
-
Владельцев бизнеса в сфере luxury-аренды: Эксклюзивный объект для самого взыскательного сегмента рынка. Возможность сдавать виллу-резиденцию с частным парком, что обеспечивает рекордную доходность и минимальную конкуренцию.
-
Крупных инвесторов: Стратегический актив премиум-класса с высочайшим потенциалом капитализации. Рост стоимости подобных уникальных объектов в престижном курортном кластере значительно опережает среднерыночные показатели.
📍 Дополнительно:
Квартира находится в строящемся комплексе бизнес-класса. Район Шекветили — это первоклассная курортная инфраструктура: собственный песчаный пляж, современная набережная, рестораны, кафе и вся необходимая для жизни и отдыха среда.
Готовы обсудить эксклюзивные условия?
Для получения полного досье объекта, детальных визуализаций и индивидуального финансового расчета оставьте заявку на сайте или напишите нам в WhatsApp для персональной презентации.















